Uudet käyttö- ja sopimusehdot
Päivitämme käyttö- ja sopimusehtojamme. Uudet ehdot ovat voimassa 1.5.2025 alkaen. Tutustu ehtoihin
Pursimiehenkatu 29-31 Punavuori, Helsinki
00150Tyyppi
Toimisto
Koko
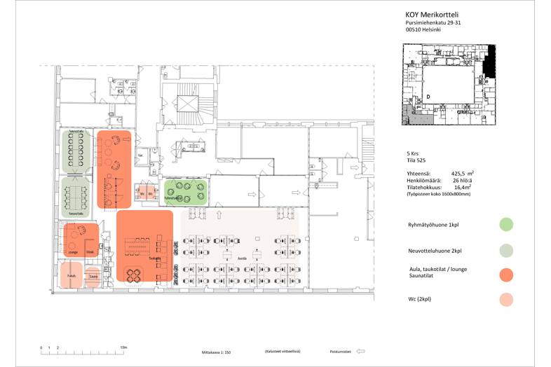
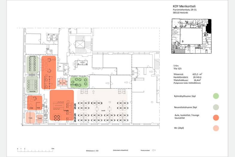
425 m²
Vuokra
Kysy hintaa!
Pursimiehenkadulla vapautumassa toimistotilaa omalla saunalla viidennessä kerroksessa dynaamisessa Merikorttelissa, trendikkäiden kahviloiden ja ravintoloiden lähellä. Korkeaa, teollismaista , mutta modernia toimistotilaa. Kortteli käsittää 28 000 m2 toimitilaa yhteensä kuudessa maan päällisessä kerroksessa.. Tiloissa on suuret huonekorkeudet ja tilat ovat muuntojoustavat asiakkaiden tarpeiden ja toiveiden mukaisesti. Uniikkikohde Erinomaiset julkiset yhteydet. 15 minuutin kävelymatkan (2 km) päässä Rautatieasemalta. Raitiovaunu 1A:n päätepysäkki on juuri korttelin kohdalla. Lisäksi raitiovaunu 6 ja useita bussilinjoja pysähtyy lähellä.
Perustiedot
Tyyppi:
Toimisto
Sopimustyyppi:
Vuokrataan
Osoite:
Pursimiehenkatu 29-31, 00150 Helsinki
Kaupunginosa:
Punavuori
Tilan koko
Kokonaispinta-ala:
425 m²
Kartta
Tietoa ilmoittajasta
ML Real Estate Oy
Näytä kaikki saman ilmoittajan kohteetMannerheimintie 12 B, 5.krs
00100
Helsinki


























