Uudet käyttö- ja sopimusehdot
Päivitämme käyttö- ja sopimusehtojamme. Uudet ehdot ovat voimassa 1.5.2025 alkaen. Tutustu ehtoihin
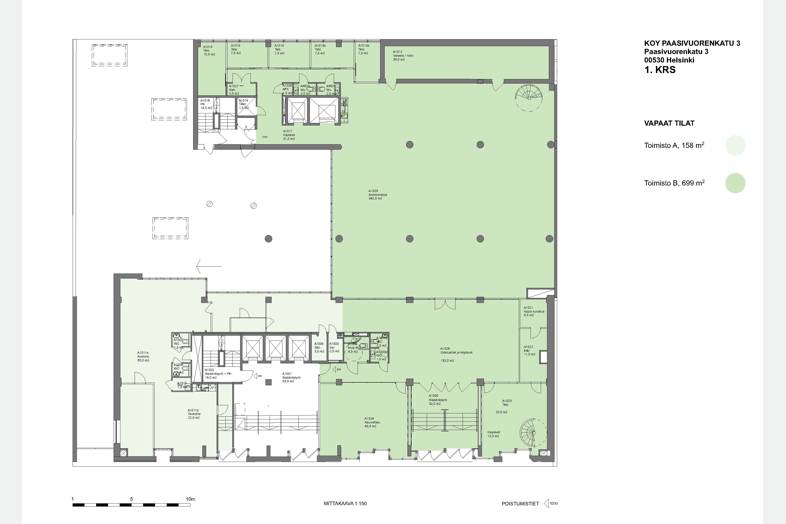
Paasivuorenkatu 3 Hakaniemi, Helsinki
00530Tyyppi
Toimisto
Koko
815 m²
Vuokra
Kysy hintaa!
Vapaa ensimmäisen kerroksen toimitila, uniikki vanha pankkisali, korkea huonekorkeus. Kysy lisää tilan mahdollisuuksista.
Palvelut: aulapalvelut, lounasravintola / kahvila, parkkihalli, saunatilat, sähköauton latauspiste, wellness-palveluita. BREEAM Excellent -sertifikaatti.
Yhteydet : bussi – 50m, juna – 1,1 km, lentokenttä – 18 km, metro – 100m ja raitiovaunu – 100m.
Perustiedot
Tyyppi:
Toimisto
Sopimustyyppi:
Vuokrataan
Osoite:
Paasivuorenkatu 3, 00530 Helsinki
Kaupunginosa:
Hakaniemi
Tilan koko
Kokonaispinta-ala:
815 m²
Kartta
Tietoa ilmoittajasta
ML Real Estate Oy
Näytä kaikki saman ilmoittajan kohteetMannerheimintie 12 B, 5.krs
00100
Helsinki










