Uudet käyttö- ja sopimusehdot
Päivitämme käyttö- ja sopimusehtojamme. Uudet ehdot ovat voimassa 1.5.2025 alkaen. Tutustu ehtoihin
Kaupintie 5 Lassila, Helsinki
00440Tyyppi
Toimisto
Koko
172 - 367 m²
Vuokra
Kysy hintaa!
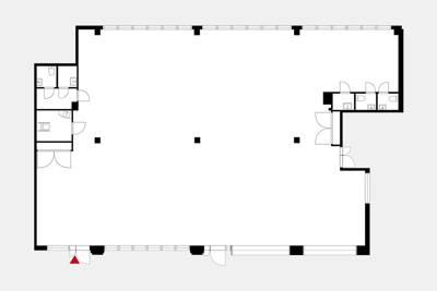
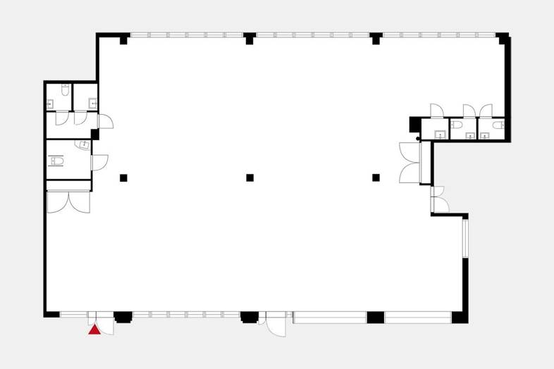
Vuokrataan katutason toimitila Pohjois-Haagan juna-aseman välittömästä läheisyydestä. Tämä avara kokonaisuus sopii liiketilaksi, myymäläksi tai toimistoksi, sen korkeus on 3,2 m. Tila on jaettavissa 172 ja 195 neliön toimitiloihin. Tilassa on kaksi siivouskomeroa ja neljä wc:tä, joista yksi on inva-wc. Ravintolakäyttöön se ei kuitenkaan sovellu.
Kiinteistössä käynnistyy laajamittainen peruskorjaus, joka valmistuu 08/2026. Ylempiin kerroksiin sijoittuu hoivapalveluita ja näihin katutason tiloihin joko toimistoja tai liiketiloja.
Käytännössä kaikki tilat rakennetaan uudestaan, ja mm. talotekniikka uudistetaan nykypäivän vaatimuksia huomioiden (jäähdytys yms.). Tässä vaiheessa on mahdollista vaikuttaa mm. tilan pohjapiirroksiin, jotka voidaan muokata omien tarpeiden mukaan.
Kiinteistöstä löytyy autopaikkoja, pyörävarasto sekä sosiaali- ja pesutilat. Tämä on loistava vaihtoehto toimijalle, joka hakee uutta saneerattua toimitilaa hyvien liikenneyhteyksien varrelta. Ota yhteyttä ja kysy lisätietoja!
Kysy lisätietoja tai sovitaan käynti kohteelle jo tänään!
Perustiedot
Tyyppi:
Toimisto
Sopimustyyppi:
Vuokrataan
Osoite:
Kaupintie 5, 00440 Helsinki
Kaupunginosa:
Lassila
Tilan koko
Kokonaispinta-ala:
367 m²
Tilan jakautuminen tilatyyppien mukaan
| Tilatyypit | Min m² | Max m² | €/m²/kk |
|---|---|---|---|
| Toimisto | 172 | 367 |
Rakennustiedot
Kiinteistön nimi:
Helsingin Kaupintie 5
Kartta
Tietoa ilmoittajasta
Hausala Oy
Näytä kaikki saman ilmoittajan kohteetErkkilänkatu 11
33100
TAMPERE








