Uudet käyttö- ja sopimusehdot
Päivitämme käyttö- ja sopimusehtojamme. Uudet ehdot ovat voimassa 1.5.2025 alkaen. Tutustu ehtoihin
Ahventie 4 Matinkylä, Espoo
02170Tyyppi
Toimisto
Koko
245 m²
Vuokra
Kysy hintaa!
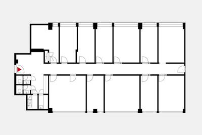
Vuokrataan viidennen kerroksen 245 m² toimistotila Ahti Business Parkista, Espoon Haukilahdesta. Tilassa on avotilaa, erikokoisia huoneita, sosiaalitilat sekä varastotilaa.
Ahti Business Park sijaitsee Espoon Haukilahdessa, aivan Länsiväylän varrella. Täällä nautitaan vehreästä lähiympäristöstä ja ikkunoista aukeavista luontomaisemista. Ahdin tavoitteena on tarjota yrityksillensä mahdollisimman viihtyisä työympäristö ja vihreät palveluratkaisut. Kiinteistön kaikki vapaat tilat ovat helposti muunneltavissa käyttäjiensä tarpeiden mukaisesti, mikä mahdollistaa persoonallisten ja kullekin yritykselle sopivien toimitilaratkaisujen luomisen. Sijainti on erinomainen Länsiväylän varrella Matinkylän ja Niittykummun liikenneyhteyksien vieressä.
Kiinteistön palveluihin kuuluu mm. aulapalvelu, lounasravintola sekä Catering- palvelut. Kiinteistön vuokralaisille on tarjolla runsaasti vuokrattavia pysäköintipaikkoja sekä ulkokannella että autohallissa. Vierailijoilla on mahdollisuus pysäköidä autonsa maksuttomasti ulkokannelle ilmoittaessaan autonsa rekisterinumeron Ahdin aulapalveluun.
Ota yhteyttä, käydään kiertämässä kohteen tilat ja suunnitellaan teille sopiva kokonaisuus!
Perustiedot
Tyyppi:
Toimisto
Sopimustyyppi:
Vuokrataan
Osoite:
Ahventie 4, 02170 Espoo
Kaupunginosa:
Matinkylä
Tilan koko
Kokonaispinta-ala:
245 m²
Rakennustiedot
Kiinteistön nimi:
Ahti Business Park
Kartta
Tietoa ilmoittajasta
Hausala Oy
Näytä kaikki saman ilmoittajan kohteetErkkilänkatu 11
33100
TAMPERE








