Uudet käyttö- ja sopimusehdot
Päivitämme käyttö- ja sopimusehtojamme. Uudet ehdot ovat voimassa 1.5.2025 alkaen. Tutustu ehtoihin
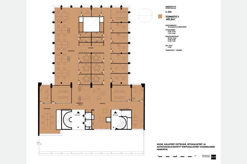
Fabiankatu 8 Keskusta, Helsinki
00130Tyyppi
Toimisto
Koko
5 070 m²
Vuokra
Kysy hintaa!
Koko rakennus saneerataan, mahdollisuus vuokrata koko rakennus. Uutta modernia toimitilaa, arvorakennusten keskellä, omassa rauhassa ja Helsingin ytimessä.
Jotain vanhaa, jotain uutta. Fabian 8 osoitteen historia ulottuu 1800-luvulle, jolloin paikalla sijaitsi asuintalo. Muodonmuutos asuinrakennuksesta toimistokäyttöön tapahtui 1970-luvulla. Nyt luomme taas jotain aivan uutta, juuri tähän hetkeen ja pitkälle tulevaisuuteen. Teemme sen modernilla tavalla, jolla hiilijalanjälki pienenee: runko pysyy, mutta julkisivu uudistuu ja sisäpihalle nousee uusi lisärakennus.
Helsingin ainutlaatuisimman toimitilan evoluutio vanhasta uuteen syntyy nykyajan parhailla materiaaleilla, huipputalotekniikalla ja ainutlaatuisella arkkitehtuurilla. Kaupungin kauneimmista näköaloista pääset parhaiten nauttimaan uusien kattoterassien suojista. Kun huipulla tuulee, työt sujuvat.
Se, mikä on Helsingin ydinkeskustassa parasta, näkyy parhaiten juuri Fabianinkadulla. Kaartinkaupunki on täynnä historiaa ja toinen toistaan upeampia klassisia arvorakennuksia. Virkistävää vihreää tuo Esplanadin puisto ja vilkkautta aina vireä Kauppatori. Fabian 8 on kadullaan ainoa toimitilarakennus, jossa on upeat isot ikkunat aina lattiasta kattoon jokaisessa kerroksessa. Luoden tunteen, että olet kaiken keskellä omassa rauhassa. Fabian 8:n toimitilat ja työpäivät ovat täynnä valoa ja aurinkoa.
Kaikki kulkuvälineet löytävät tiensä keskipisteeseen helposti. Saavut sujuvasti liikuit jalan, pyörällä, autolla tai julkisilla. Kun sijainti on oikea ja merkityksellinen, se tuo vapautta arkeen.
Fabian 8 on ainutlaatuinen toimitila Helsingissä. Se on poikkeus säännöstä. Se on perinteisten arvorakennusten keskellä oleva tyylikäs helmi, jonka sisällä on huippuunsa viritettyä modernia ja toimivaa talotekniikkaa.
Fabian 8 on laatua, joka ei huuda. Uudistetun rakennuksen tyyli ja arkkitehtuuri on ainutlaatuista ja ajatonta. Se on toimitila, joka kiinnostaa, vaikuttaa ja inspiroi. Tämän tunnelman aistii vain
Perustiedot
Tyyppi:
Toimisto
Sopimustyyppi:
Vuokrataan
Osoite:
Fabiankatu 8, 00130 Helsinki
Kaupunginosa:
Keskusta
Tilan koko
Kokonaispinta-ala:
5070 m²
Tietoa ilmoittajasta
ML Real Estate Oy
Näytä kaikki saman ilmoittajan kohteetMannerheimintie 12 B, 5.krs
00100
Helsinki










