Uudet käyttö- ja sopimusehdot
Päivitämme käyttö- ja sopimusehtojamme. Uudet ehdot ovat voimassa 1.5.2025 alkaen. Tutustu ehtoihin
Kelatie 9 C Kulomäki, Tuusula
01450Tyyppi
Tuotantotila
Koko
190 m²
Kerros
1 / 2
Myyntihinta
450 000 €
Saatavilla
Heti vapaa
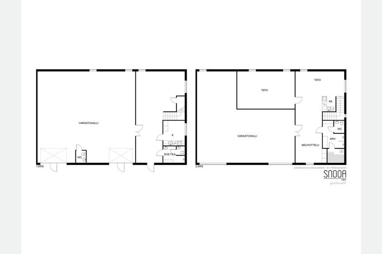
Tilava ja toimivapohjainen tuotanto-/varastotila, jonka yhteydessä on tyylikkäät toimisto- ja edustustilat sekä sauna, keittiö ja kylpyhuone. Koko tila on täysin uudistettu pintojen ja talotekniikan osalta vuonna 2019, ja se on erinomaisessa kunnossa.
Tuotanto-/varastotilassa on kaksi suurta nosto-ovea, joiden kautta pääsee ajamaan sisään myös isommalla paketti- tai kuorma-autolla. Tila on pääosin korkeaa, mikä mahdollistaa monipuolisen käytön esimerkiksi varastointiin, kevyeen tuotantoon tai muuhun liiketoimintaan.
Toimisto- ja edustustilat soveltuvat loistavasti toimistokäyttöön, showroomiksi tai asiakastapaamisiin. Saunatilat ja keittiö viimeistelevät viihtyisyyden.
Yksityisnäyttöjä järjestetään joustavasti – varaa oma aikasi!
Yhteydenotot:
Snooa LKV
Juha Kallahti
juha@snooa.fi
p. 0405309179
Perustiedot
Tyyppi:
Tuotantotila
Sopimustyyppi:
Myydään
Osoite:
Kelatie 9 C, 01450 Tuusula
Kaupunginosa:
Kulomäki
Velaton hinta:
450 000 €
Myyntihinta:
450 000 €
Hoitovastike:
414 €
Lisätiedot
Saatavilla:
Heti vapaa
Kerros:
1 / 2
Ota yhteyttä
Juha Kallahti
LKV, Toimitusjohtaja
Näytä puhelinnumero
Lähetä yhteydenottopyyntö






















































