Uudet käyttö- ja sopimusehdot
Päivitämme käyttö- ja sopimusehtojamme. Uudet ehdot ovat voimassa 1.5.2025 alkaen. Tutustu ehtoihin
Tetriläntie 6 A Oulunsalo, Oulu
90460Tyyppi
Liiketila
Koko
87 m²
Vuokra
9,77 €/m²/kk
Saatavilla
01.05.2025
Huippu sijainnilta nyt loistava mahdollisuus vuokrata yrityksellesi toimivat tilat.
Erinomaisen hyvä näkyvyys Lentokentäntielle.
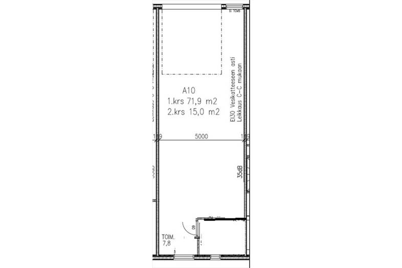
- Toisen kerroksen ikkunallinen parvitila n 15m2
- Ensimmäisessä kerroksessa taukotila ja sosiaaliset tilat hallin takaosassa.
- alakerta 71,9 m2
- 5 metriä korkeaa hallitilaa noin 60m2, johon pääsee 3,4m korkeasta nosto-ovesta.
Vuokralainen tekee sähkösopimuksen (käyttösähkö ja lämmitys) ja maksaa vedestä kulutuksen mukaan.
Kysyppä lissää ja käydäänkö katsomassa?
aarno.annola@tilahaukka.fi / 040 176 9909
Perustiedot
Tyyppi:
Liiketila
Sopimustyyppi:
Vuokrataan
Osoite:
Tetriläntie 6 A, 90460 Oulu
Kaupunginosa:
Oulunsalo
Vuokra:
9,77 €/m²/kk
Lisätiedot
Saatavilla:
01.05.2025
Ympäristö
Pysäköinti:
Pihapaikat autoille hallin edustalla
Kartta
Tietoa ilmoittajasta
Asumaan.com Oy
Näytä kaikki saman ilmoittajan kohteetVihikari 6 A
90440
KEMPELE
















