Uudet käyttö- ja sopimusehdot
Päivitämme käyttö- ja sopimusehtojamme. Uudet ehdot ovat voimassa 1.5.2025 alkaen. Tutustu ehtoihin
Insinöörinkatu 12 Herttoniemi, Helsinki
00880Tyyppi
Toimisto
Koko
121 m²
Vuokra
Kysy hintaa!
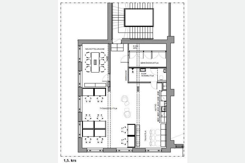
Siisti modernisoitu 121 m² toimisto Herttoniemessä
Herttoniemenen kehittyvän uudisasuntokorttelin keskiössä 1940- luvulla rakennettu ja julkisivuiltaan suojeltu entinen tehdasrakennus, joka toimii muistona alueen teollisuushistoriasta.
1,5 kerroksen uusi, mutta talon historiaa henkivä monipuolinen toimistohuoneisto keittiöineen ja sosiaalitiloineen.
Kyseessä on 1947 valmistunut suojeltu entinen tehdasrakennus. Rakennuksessa on kolme kerrosta + ullakko. Varsinaisten kerrosten pinatala on n. 900 m² / kerros. Kiinteistöön on tehty peruskorjaus, jonka yhteydessä on uusittu kiinteistön talotekniikka täydellisesti.
Perustiedot
Tyyppi:
Toimisto
Sopimustyyppi:
Vuokrataan
Osoite:
Insinöörinkatu 12, 00880 Helsinki
Kaupunginosa:
Herttoniemi
Tilan koko
Kokonaispinta-ala:
121 m²
Rakennustiedot
Rakennusvuosi:
1947
Energialuokka:
Ei lain edellyttämää energiatodistusta
Kartta
Tietoa ilmoittajasta
ScanReal Oy LKV
Näytä kaikki saman ilmoittajan kohteetOpus Business Park, Hitsaajankatu 24
00810
Helsinki


























