Uudet käyttö- ja sopimusehdot
Päivitämme käyttö- ja sopimusehtojamme. Uudet ehdot ovat voimassa 1.5.2025 alkaen. Tutustu ehtoihin
Teollisuustie 2, 07230 Askola Askola
07230Tyyppi
Tuotantotila
Koko
2 250 m²
Vuokra
Kysy hintaa!
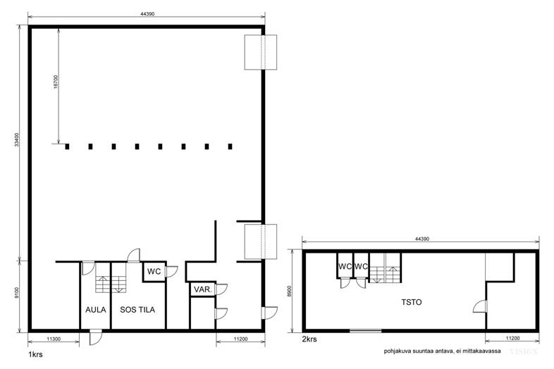
Vuokrattavana monikäyttöinen tuotanto-/varastotila Askolassa. Tila on aiemmin toiminut kalustetehtaana ja soveltuu erinomaisesti tuotannolliseen tai varastokäyttöön.
Hallissa on kaksi nosto-ovea (n. 4,3 m x 4,2 m), joista toinen on varustettu lastauslaiturilla ja toinen on sisäänajettava. Hallin pinta-ala on noin 1 500 m², ja sen korkeus on noin 4,4 m. Ensimmäisestä kerroksesta löytyy myös matalampaa tilaa (n. 2,9 m), jossa sijaitsevat sosiaalitilat.
Toisessa kerroksessa on avointa toimistotilaa. Vuokra: 8 212,50 € +alv
Perustiedot
Tyyppi:
Tuotantotila, Varastotila, Muu
Sopimustyyppi:
Vuokrataan
Osoite:
Teollisuustie 2, 07230 Askola, 07230 Askola
Tilan koko
Kokonaispinta-ala:
2250 m²
Tilan jakautuminen tilatyyppien mukaan
| Tilatyypit | Min m² | Max m² | €/m²/kk |
|---|---|---|---|
| Tuotantotila | 2 250 | ||
| Varastotila | 2 250 | ||
| Muu | 2 250 |
Rakennustiedot
Energialuokka:
Ei lain edellyttämää energiatodistusta
Lisätiedot
Muita tietoja:
Vuokra: 8 212,50 €/kk (3,65 €/m²) + alv
Vuokra perustuu pääomavuokraan, vuokralainen maksaa lisäksi käyttökulut (sähkö, lämpö, vesi, puhtaanapito).
Ympäristö
Pysäköinti:
Kiinteistöllä on oma iso piha-alue raskaammallekkin kalustolle.
Kartta
Tietoa ilmoittajasta
Comreal Oy
Näytä kaikki saman ilmoittajan kohteetLäkkisepänkuja 6
00620
Helsinki










