Uudet käyttö- ja sopimusehdot
Päivitämme käyttö- ja sopimusehtojamme. Uudet ehdot ovat voimassa 1.5.2025 alkaen. Tutustu ehtoihin
Fredrikinkatu 34 Kamppi, Helsinki
00100Tyyppi
Toimisto
Koko
118 m²
Kerros
3
Vuokra
25 €/m²/kk
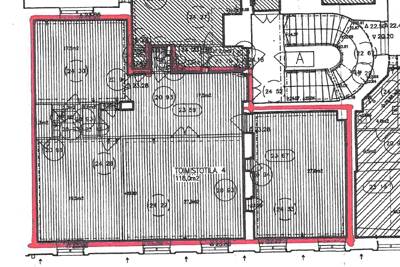
FREDRIKINKATU 34 - toimistotila 118m2
Hyväkuntoinen toimistotila kiinteistön A-rapun 3. kerroksesta.
Tämä jäähdytetty toimisto pitää sisällään 3 huonetta, keittiösyvennyksen, tauko-/neuvottelutila ja wc:n.
Kuituyhteys ja ovipuhelin. Myös alvittomille toimijoille!
Lisätiedot ja kohdenäytöt: p. 040 7070 321 / Heikki
Perustiedot
Tyyppi:
Toimisto
Sopimustyyppi:
Vuokrataan
Osoite:
Fredrikinkatu 34, 00100 Helsinki
Kaupunginosa:
Kamppi
Vuokra:
25 €/m²/kk
Tilan koko
Kokonaispinta-ala:
118 m²
Lisätiedot
Kerros:
3
Ympäristö
Liikenneyhteydet:
Metro-Kamppi: 400 m
Raitiovaunupysäkki: 300 m (1/1T/2/3/6)
Raitiovaunupysäkki: 350 m (7/7H/9/9H/9N)
Linja-autoasema: 550 m
Linja-autopysäkki: 190 m (20/30)
EuroPark P-Autotalo 500 m
EuroPark P-Simonkenttä 600 m
EuroPark P-Kamppi 700 m
Kartta
Tietoa ilmoittajasta

CRE PREMISES
Näytä kaikki saman ilmoittajan kohteetVantaankoskentie 14
01670
VANTAA




























