Uudet käyttö- ja sopimusehdot
Päivitämme käyttö- ja sopimusehtojamme. Uudet ehdot ovat voimassa 1.5.2025 alkaen. Tutustu ehtoihin
Työpajankatu 9 Kalasatama, Helsinki
00580Tyyppi
Toimisto
Koko
210 m²
Kerros
3
Vuokra
Kysy hintaa!
Korkeatasoinen 202 m² toimisto historiallisessa miljöössä Kalasatamassa.
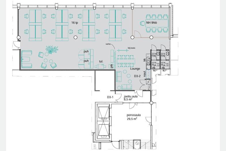
Tämä hiljattain kokonaan remontoitu, neliöiltään tehokas toimistotila sijaitsee Troolin D-rapussa. Tämän toimiston valoisaan avotilaan mahtuu työskentelemään 10-27 henkeä, lisäksi tilassa on neuvotteluhuone 8 hengelle. Keittiö + loungetila sijaitsevat sisäänkäynnin yhteydessä.
Ikkunat avautuvat pohjoiseen kadulle.
Tilassa on datakaapelointi talojakamosta vuokratilaan; kuitukaapelointi (4 yksimuoto + 4monimuoto) ja tilan sisäinen kaapelointi CAT6- kaapelointi.
Historiallinen miljöö, joka on täynnä trendikkäitä kohtaamisalueita ja viihtyisiä lounaspaikkoja, kuten Teurastamon alueen ravintolat.
- Siistiä, uudenveroista tilaa
- Hyvät kulkuyhteydet, mm. Kalasataman metroasema lähellä
- Aulapalvelu
- Laadukas henkilöstöravintola
- Vuokrattavia neuvottelutiloja
- Auditorio
- Kuntosali
- Vuokrattavat saunatilat
- kauppakeskus Redi lähellä
Perustiedot
Tyyppi:
Toimisto, Muu
Sopimustyyppi:
Vuokrataan
Osoite:
Työpajankatu 9, 00580 Helsinki
Kaupunginosa:
Kalasatama
Tilan koko
Kokonaispinta-ala:
210 m²
Tilan jakautuminen tilatyyppien mukaan
| Tilatyypit | Min m² | Max m² | €/m²/kk |
|---|---|---|---|
| Toimisto | 202 | ||
| Muu | 8 |
Rakennustiedot
Rakennusvuosi:
2002
Energialuokka:
Ei lain edellyttämää energiatodistusta
Lisätiedot
Kerros:
3
Ympäristö
Pysäköinti:
Autohalli ja pihapaikkoja
Lähipalvelut:
Alueella monipuoliset ravintola- ja kulttuuripalvelut
Liikenneyhteydet:
Metroasema 500 m, Raitiovaunupysäkki 500 m, Bussipysäkki alle 100 m, Juna-asema 2,9 km, Lentoasema 16,6 km
Kartta
Tietoa ilmoittajasta
ScanReal Oy LKV
Näytä kaikki saman ilmoittajan kohteetOpus Business Park, Hitsaajankatu 24
00810
Helsinki


















