Uudet käyttö- ja sopimusehdot
Päivitämme käyttö- ja sopimusehtojamme. Uudet ehdot ovat voimassa 1.5.2025 alkaen. Tutustu ehtoihin
Mekaanikonkatu 19 Herttoniemi, Helsinki
00880Tyyppi
Varastotila
Koko
80 m²
Vuokra
Kysy hintaa!
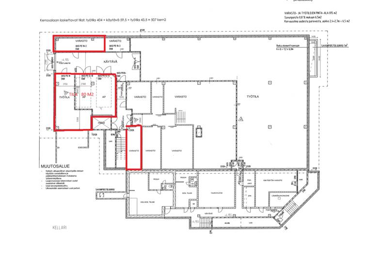
Vuokrataan Herttoniemessä siistiä kellaritilaa n. 80 m2 varastoksi tai pientuotantoon. Ks. pohjakuva.
Erinomaiset liikenneyhteydet julkisilla.
Yhteystiedot: p. 045 261 6555/Mika tai 020 7290 710
Lisää kohteita: www.premises.fi
Kohteella ei ole lain edellyttämää energiatodistusta.
Perustiedot
Tyyppi:
Varastotila, Tuotantotila, Muu
Sopimustyyppi:
Vuokrataan
Osoite:
Mekaanikonkatu 19, 00880 Helsinki
Kaupunginosa:
Herttoniemi
Tilan koko
Kokonaispinta-ala:
80 m²
Tilan jakautuminen tilatyyppien mukaan
| Tilatyypit | Min m² | Max m² | €/m²/kk |
|---|---|---|---|
| Varastotila | 80 | ||
| Tuotantotila | 80 | ||
| Muu | 80 |
Ympäristö
Liikenneyhteydet:
Bussit ja Metro
Kartta
Tietoa ilmoittajasta

CRE PREMISES
Näytä kaikki saman ilmoittajan kohteetVantaankoskentie 14
01670
VANTAA








