Uudet käyttö- ja sopimusehdot
Päivitämme käyttö- ja sopimusehtojamme. Uudet ehdot ovat voimassa 1.5.2025 alkaen. Tutustu ehtoihin
Voudintie 3 Limingantulli, Oulu
90400Tyyppi
Toimisto
Vuokra
Kysy hintaa!
Saatavilla
Heti vapaa
Etsitkö sopivaa toimistotilaa Oulusta?
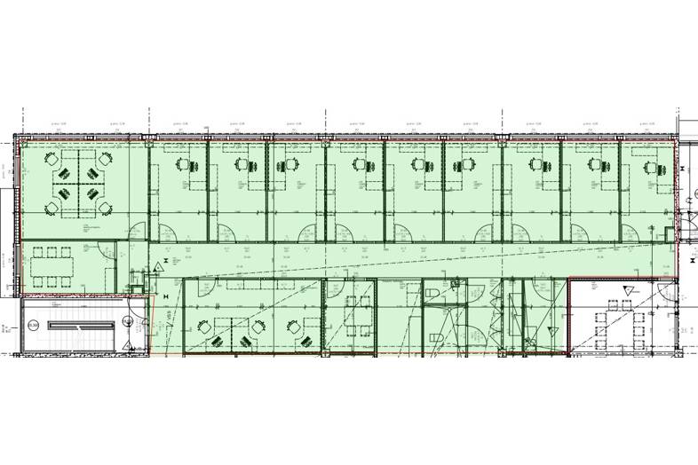
Voudintie 3 tarjoaa viihtyisät ja muunneltavat tilat niin pienille kuin isommillekin yrityksille.
Modernit tilat, hyvä sijainti ja joustavat ratkaisut tekevät tästä toimivan vaihtoehdon monenlaiseen käyttöön.
Tiloista löytyy:
• Ilmastointi ja jäähdytys – mukavat työolosuhteet ympäri vuoden
• Hyvät nettiyhteydet
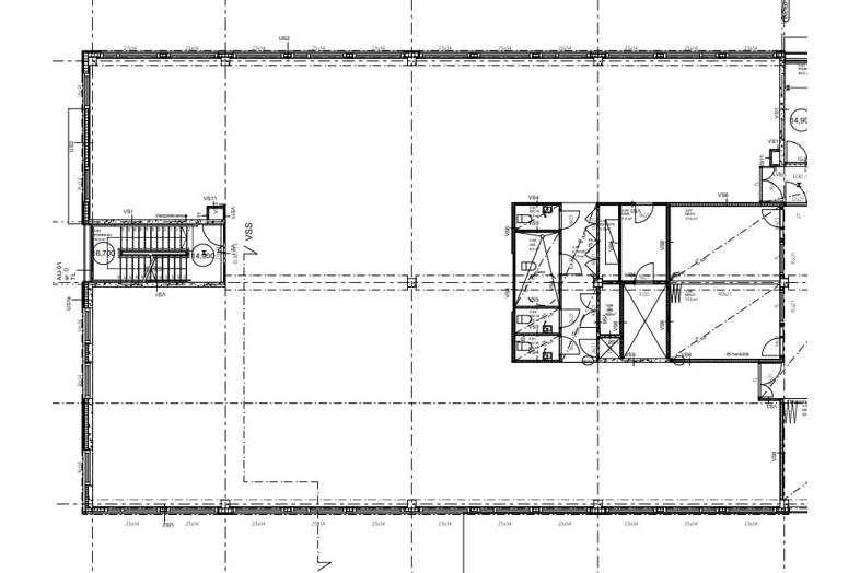
• Tilat muokattavissa tarpeen mukaan, kokovaihtoehtoja on useita
esim. 237 - 270 - 372 - 554 - 824m2.
Mikä olisi teille sopivankokoinen tila?
• Tiloja löytyy kolmannesta ja neljännestä kerroksesta.
• Huoneissa desibeliovet (ääniluokka 30dB)
• Helppo saavutettavuus autolla, polkupyörällä, mopedilla ja julkisilla
• Hyvät suihkutilat työmatkapyöräilijöitä ja hiki otsalla työtään tekeviä varten.
Pysäköinti:
• Asiakaspaikat ilmaisia (2h)
• Henkilökunnan paikat vain 35 €/kk
Hinnoittelu:
Pääomavuokra 17,40 € x 1,2 jyv = 20,88 eur/m2 m2 + alv
Ylläpitovuokra 3,50 € x 1,2 jyv = 4,20 eur/m2 m2 + alv
Autopaikkoja pihalta à = 35,00 €/paikka/kk
Ylläpitovuokra sisältää mm. sähkön, lämmityksen, veden, avaimet ym. juoksevat kulut. Vuokralaisen vastuulle jää vain omien tilojen siivous.
Voudintie 3 on helppo löytää ja sijainti toimii loistavasti niin työntekijöille kuin asiakkaillekin.
Neuvotellaan tästä teille sopivat tilat. Mahdollista vuokrata myös alvittomaan käyttöön.
Saa soittaa tai laittaa s-postia:
040 176 9909 / aarno.annola@tilahaukka.fi
Perustiedot
Tyyppi:
Toimisto
Sopimustyyppi:
Vuokrataan
Osoite:
Voudintie 3, 90400 Oulu
Kaupunginosa:
Limingantulli
Lisätiedot
Saatavilla:
Heti vapaa
Ympäristö
Pysäköinti:
Pihalla hyvin autopaikkoja asiakkaille ja henkilökunnalle.
Kartta
Tietoa ilmoittajasta
Asumaan.com Oy
Näytä kaikki saman ilmoittajan kohteetVihikari 6 A
90440
KEMPELE
























































