Uudet käyttö- ja sopimusehdot
Päivitämme käyttö- ja sopimusehtojamme. Uudet ehdot ovat voimassa 1.5.2025 alkaen. Tutustu ehtoihin
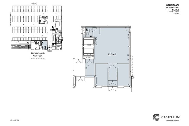
Salmisaarenaukio 1 Salmisaari, Helsinki
00180Tyyppi
Toimisto
Koko
127 m²
Kerros
1 / 8
Vuokra
Kysy hintaa!
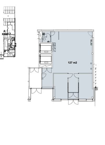
Muuttovalmis, katutason 127 m² toimitila upealta sijainnilta meren ääreltä Salmisaaresta.
Oma sisäänkäynti Salmisaarenrannan puolella mahdollistaa tilan käytettävyyden niin toimisto kuin showroomina. Tilassa on pari huonetta, keittiö ja wc:t.
Vuonna 2007 valmistunut Salmisaarenaukio 1 rakennettiin alun perin korkeatasoiseksi pääkonttorikiinteistöksi.
Katutason 127 m² toimistossa on kaksi huonetta ja iso neukkari, oma sisäänkäynti, merinäköala.
Kiinteistön on suunnitellut arkkitehtitoimisto Helin & Co Architects.
• Kiinteistössä on toimitiloja yhteensä noin 14.500 m².
• Salmisaarenaukio tarjoaa tyylikkäät ja muuntojoustavat toimitilat, jotka remontoidaan asiakkaiden tarpeiden ja toiveiden mukaisesti.
• Kiinteistön lattiasta kattoon ulottuvista ikkunoista avautuu mahtava merimaisema kohti Lauttasaarta.
• Tarvittavat pysäköintipaikat löytyvät suoran hissiyhteyden päästä, kiinteistön välittömässä yhteydessä sijaitsevasta lämpimästä pysäköintihallista.
• Kiinteistö on sertifioitu kansainvälisellä Breeam In Use -ympäristösertifikaatilla
Talossa on runsaasti liiketoimintaa helpottavia palveluita mm. lämmin autohalli, neuvottelutiloja, aulapalvelu, lounasravintola, lukittavat säilytystilat polkupyörille ja suihku- ja sosiaalitilat.
Salmisaari ja Ruoholahti ovat alunperin teollisuus ja varastoaluetta, joka on muuttunut 1990- ja 2000-luvuilla tärkeäksi yrityselämän keskittymäksi, jossa työskentelee 14.000 ihmistä.
Täällä kohtaavat historiallinen teollinen ympäristö sekä huippumodernit pääkonttoritason toimistot. Kyseessä on Helsingin tärkein pääkonttorikeskittymä keskustan ohella. Alueella pääkonttoriansa pitävät mm. Varma, Ilmarinen, Wärtsilä,
F-Secure, Cargotec, Outokumpu, Altia, Accenture, Supercell, Kemira ja Deloitte.
Perustiedot
Tyyppi:
Toimisto, Liiketila
Sopimustyyppi:
Vuokrataan
Osoite:
Salmisaarenaukio 1, 00180 Helsinki
Kaupunginosa:
Salmisaari
Tilan koko
Kokonaispinta-ala:
127 m²
Tilan jakautuminen tilatyyppien mukaan
| Tilatyypit | Min m² | Max m² | €/m²/kk |
|---|---|---|---|
| Toimisto | 127 | ||
| Liiketila | 127 |
Rakennustiedot
Rakennusvuosi:
2007
Energialuokka:
Ei lain edellyttämää energiatodistusta
Lisätiedot
Kerros:
1 / 8
Kartta
Tietoa ilmoittajasta
ScanReal Oy LKV
Näytä kaikki saman ilmoittajan kohteetOpus Business Park, Hitsaajankatu 24
00810
Helsinki





