Uudet käyttö- ja sopimusehdot
Päivitämme käyttö- ja sopimusehtojamme. Uudet ehdot ovat voimassa 1.5.2025 alkaen. Tutustu ehtoihin
Pyrynkatu 4 Härmälä, Tampere
33900Tyyppi
Tuotantotila
Koko
1 308 m²
Myyntihinta
1 150 000 €
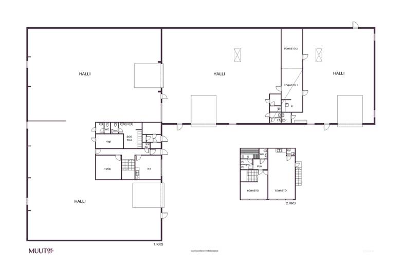
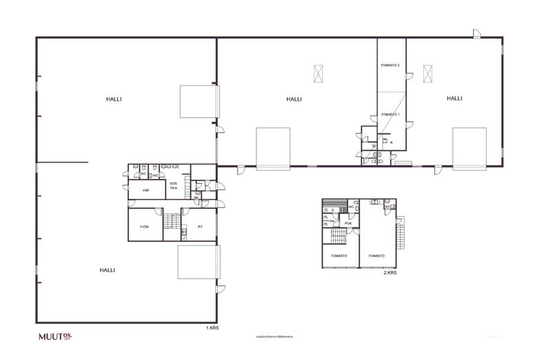
Myynnissä Teollisuushalli, 1300 m² - Sijainti Sarankulmassa, Tampere.
Myynnissä erinomainen 1300 m²:n teollisuushalli, joka sijaitsee strategisesti Tampereen Sarankulmassa, lähellä Tampereen Messukeskusta. Tämä monikäyttöinen ja tilava kiinteistö tarjoaa erinomaiset mahdollisuudet erilaisiin liiketoimintoihin, kuten varastointiin, tuotantoon ja logistiikkaan. Tila on osittain heti käyttövalmis ja se on varustettu toimivilla ratkaisuilla, jotka tukevat yrityksesi toimintaa.
Teollisuushalli rakennettu kahdessa osassa, ensimmäisen rakennusvuosi 1986 ja laajennuksen 2006.
Tärkeimmät ominaisuudet:
-Koko: 1300 m²
-Sijainti: Sarankulma, Tampere, lähellä Tampereen Messukeskusta
-Monikäyttöinen tila: Soveltuu teollisuus- ja varastointikäyttöön, logistiikkaan sekä tuotantotiloiksi
-Erinomainen sijainti: Hyvät liikenneyhteydet, lähellä Tampereen keskustaa ja moottoriteitä
-Korkeat sisäkorkeudet: Mahdollistaa suurten koneiden ja laitteiden käytön
-Kestävä ja tasainen lattia: Sopii vaativaan teollisuus- ja varastointikäyttöön
-Pysäköintimahdollisuudet: Tilaa rekkojen ja ajoneuvojen pysäköintiin
-Hyvät laajennusmahdollisuudet: Alueella on mahdollista laajentaa liiketoimintaa ja kehittää kiinteistön käyttöä
Tämä kiinteistö tarjoaa erinomaisen tilaisuuden hankkia tilaa kasvavalle yritykselle, joka tarvitsee toimivat ja joustavat tilat. Sijainti Sarankulmassa takaa loistavan saavutettavuuden ja logistiset edut, joita on vaikea ohittaa.
Ota yhteyttä ja varmista omistuksesi!
Pasi Rasku
puh. 0400 171 191
pasi.rasku@muutoslkv.fi
Ari Sointu
puh. 0400 610 828
ari.sointu@muutoslkv.fi
www.muutoslkv.fi/toimitilat
Perustiedot
Tyyppi:
Tuotantotila
Sopimustyyppi:
Myydään
Osoite:
Pyrynkatu 4, 33900 Tampere
Kaupunginosa:
Härmälä
Velaton hinta:
1 150 000 €
Myyntihinta:
1 150 000 €
Tilan koko
Kokonaispinta-ala:
1308 m²
Rakennustiedot
Rakennusvuosi:
1986
Energialuokka:
Kohteelle ei lain mukaan tarvita energiatodistusta.
Kartta
Tietoa ilmoittajasta
Muutos LKV | Pirkanmaan Laatuvälitys Oy
Näytä kaikki saman ilmoittajan kohteetTampellan Esplanadi 11
33100
Tampere






























































































