Vanha Porvoontie 231 Hakkila, Vantaa

01380

Tyyppi

Varastotila

Koko

2 700 m²

Kerros

1

Vuokra

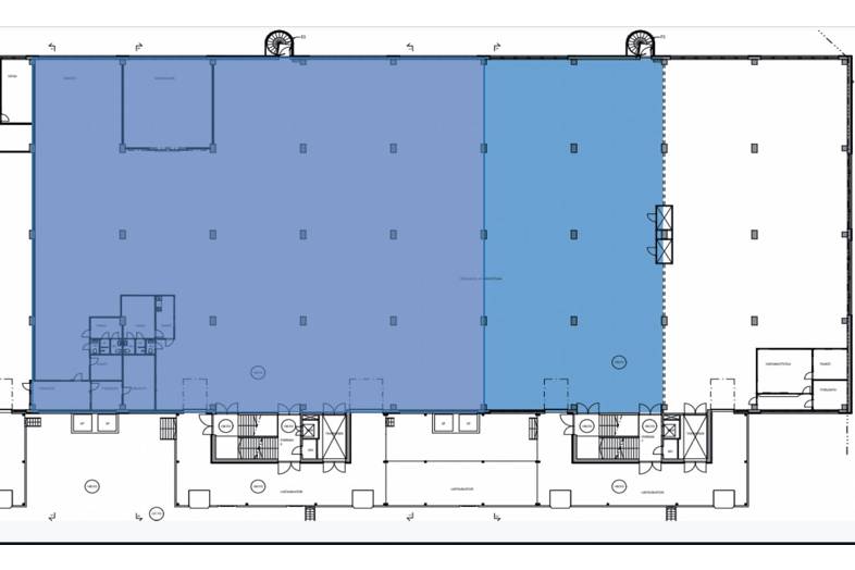
Tilava, ensimmäisen kerroksen n. 2700 m² terminaalitila Vantaan Hakkilassa. Kiinteistön ensimmäisen kerroksen terminaalitila, jossa on hyvät lastausmahdollisuudet. Tila mahdollista jakaa n. 800m² alueisiin. Vantaan Hakkilassa sijaitsevassa toimisto-, tuotanto- ja varastokiinteistössä on vuokrattavana arkistointitilaa ja mm. pitkäaikaisvarastointiin soveltuvia varastotiloja 1-4 kerroksissa. Kiinteistössä on vuokrattavana myös toimistotilaa. Vuokrattavat toimistot ovat siistejä ja moderneja ja ne soveltuvat erinomaisesti esimerkiksi näyttelytilaksi / showroomiksi. Kiinteistöllä on laaja rekkapiha ja lastauslaiturit, joilta kulku 5000 kg:n tavarahisseillä kerroksiin. Turvallisuutta kiinteistössä lisäävät mm. tontin aitaus ja sprinklerijärjestelmä. Kiinteistö sijaitsee Vantaan Hakkilassa logistiikkaan ja teollisuuteen keskittyneellä Akseli-alueella. Kiinteistö sijaitsee logistisesti erinomaisessa solmukohdassa lentoaseman ja Vuosaaren sataman puolivälissä sekä valtaväylien läheisyydessä. Alueelta on suora yhteys E75:lle (Valtatie 4:lle) ja sieltä on hyvät, toimivat yhteydet kaikkialle Suomeen. Liikkuminen on helppoa myös julkisilla kulkuvälineillä. Alueella on hyvät pysäköintimahdollisuudet suurella piha-alueella, jossa suuretkin kuljetusautot mahtuvat liikkumaan vaivattomasti.

Perustiedot

Tyyppi:
Varastotila
Sopimustyyppi:
Vuokrataan
Osoite:
Vanha Porvoontie 231, 01380 Vantaa
Kaupunginosa:
Hakkila

Tilan koko

Kokonaispinta-ala:
2700 m²

Rakennustiedot

Energialuokka:
Ei lain edellyttämää energiatodistusta

Lisätiedot

Kerros:
1

Kartta

Ota yhteyttä

ScanReal Oy LKV logotyyppi
ScanReal Oy LKV
ScanReal Oy LKV
Näytä puhelinnumero

Lähetä yhteydenottopyyntö

Tietosuojaseloste
This site is protected by reCAPTCHA and the Google Privacy Policy and Terms of Service apply.

Tietoa ilmoittajasta

ScanReal Oy LKV logotyyppi