Uudet käyttö- ja sopimusehdot
Päivitämme käyttö- ja sopimusehtojamme. Uudet ehdot ovat voimassa 1.5.2025 alkaen. Tutustu ehtoihin
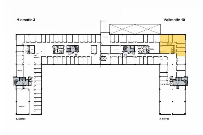
Valimotie 10 Pitäjänmäki, Helsinki
00380Tyyppi
Toimisto
Koko
157 m²
Kerros
3
Vuokra
Kysy hintaa!
Tyylikäs kolmannen kerroksen 157 m² toimisto Valimo Centeristä, loistavien kulkuyhteyksien varrelta.
Valimotie 10:stä 3. krs toimistotila, noin 157 m² + jyvitetty vuokra-alue (keittiö, aula- ja sosiaalitilat) noin 33 m². Tilassa on yksittäisiä toimistohuoneita, tiimityöhuoneita ja neuvottelutila.
Viihtyisä kolmannen kerroksen toimisto sekä neuvotteluhuone tai studio/varastotila, toimistosta näkymät pohjoiseen ja Vihdintien suuntaan
Valimo Centerin kaikkia vuokralaisia palvelee Valimotie 13a:ssa sijaitseva aulapalvelu, jossa on myös postin vastaanotto, edelleenlähetys sekä pakettipalvelut. Samassa rakennuksessa on kiinteistön oma – vuokralaisille tarkoitettu kuntosali, jonne on pääsy kulkuavaimella klo 5-21. Katutasossa herkullisen lounaan arkipäivisin tarjoilee Ravintola Factory, jossa on myös kesäterassi. Mikäli yrityksellänne on tarvetta kokoustiloille, löytyy niitä tuntiperiaatteella vuokrattavana 2-20:lle henkilölle yhteensä viisi kappaletta Valimotie 13a ja Valimotie 10 rakennuksista.
Perustiedot
Tyyppi:
Toimisto
Sopimustyyppi:
Vuokrataan
Osoite:
Valimotie 10, 00380 Helsinki
Kaupunginosa:
Pitäjänmäki
Tilan koko
Kokonaispinta-ala:
157 m²
Rakennustiedot
Energialuokka:
Ei lain edellyttämää energiatodistusta
Lisätiedot
Kerros:
3
Ympäristö
Liikenneyhteydet:
Hyvät yhteydet junalla, bussilla ja omalla autolla.
Kartta
Tietoa ilmoittajasta
ScanReal Oy LKV
Näytä kaikki saman ilmoittajan kohteetOpus Business Park, Hitsaajankatu 24
00810
Helsinki






















