Uudet käyttö- ja sopimusehdot
Päivitämme käyttö- ja sopimusehtojamme. Uudet ehdot ovat voimassa 1.5.2025 alkaen. Tutustu ehtoihin
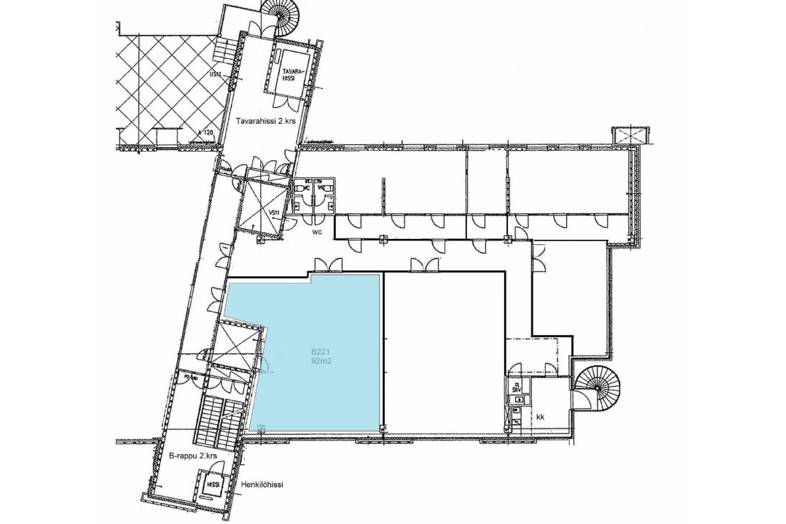
Sorvaajankatu 11 A Herttoniemi, Helsinki
00880Tyyppi
Toimisto
Koko
92 m²
Kerros
2
Vuokra
Kysy hintaa!
Monikäyttöistä, kohtuuhintaista toimitilaa hyvien kulkuyhteyksien varrella Herttoniemessä. Soveltuu työ-, varasto- tai toimistotilaksi.
Monikäyttöistä, kohtuuhintaista toimitilaa hyvien kulkuyhteyksien varrella Herttoniemessä. Soveltuu työ-, varasto- tai toimistotilaksi.
- Voimavirta
- Lastauslaituri
- Tavara- ja henkilöhissit
- Pysäköintitilaa autohallissa, kadulla vapaa pysäköinti
- Kauppakeskus Megahertsin matkaa 700 m, useita lounasravintoloita kilometrin säteellä
Bussipysäkki alle 100 m, Itäväylä 800 m, Herttoniemen metroasema 800 m, Siilitien metroasema 1,5 km
Perustiedot
Tyyppi:
Toimisto, Tuotantotila, Varastotila, Muu
Sopimustyyppi:
Vuokrataan
Osoite:
Sorvaajankatu 11 A, 00880 Helsinki
Kaupunginosa:
Herttoniemi
Tilan koko
Kokonaispinta-ala:
92 m²
Tilan jakautuminen tilatyyppien mukaan
| Tilatyypit | Min m² | Max m² | €/m²/kk |
|---|---|---|---|
| Toimisto | 92 | ||
| Tuotantotila | 92 | ||
| Varastotila | 92 |
Rakennustiedot
Energialuokka:
Ei lain edellyttämää energiatodistusta
Lisätiedot
Kerros:
2
Linkit
Kartta
Tietoa ilmoittajasta
ScanReal Oy LKV
Näytä kaikki saman ilmoittajan kohteetOpus Business Park, Hitsaajankatu 24
00810
Helsinki














