Uudet käyttö- ja sopimusehdot
Päivitämme käyttö- ja sopimusehtojamme. Uudet ehdot ovat voimassa 1.5.2025 alkaen. Tutustu ehtoihin
Päiväläisentie 4 Konala, Helsinki
00390Tyyppi
Toimisto
Koko
275 m²
Kerros
2 / 2
Vuokra
Kysy hintaa!
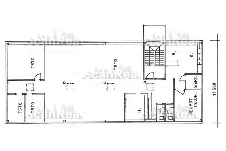
Avara ja valoisa 275 m² toimisto hyvällä paikalla Helsingin Konalassa, Vihdintien varrella. Harvinaisen edullista ja tasokasta toimistotilaa!
Saneerattua toisen kerroksen toimitilaa hyvällä paikalla Helsingin Konalassa, Vihdintien varrella.
Tiloissa ilmastointi.
Edullinen vuokra!
Tila sopii erinoimaisesti toimiston lisäksi esim show-roomiksi.
Perustiedot
Tyyppi:
Toimisto, Muu
Sopimustyyppi:
Vuokrataan
Osoite:
Päiväläisentie 4, 00390 Helsinki
Kaupunginosa:
Konala
Tilan koko
Kokonaispinta-ala:
275 m²
Rakennustiedot
Energialuokka:
Ei lain edellyttämää energiatodistusta
Lisätiedot
Kerros:
2 / 2
Ympäristö
Pysäköinti:
Vuokrattavissa 8-10 kpl autopaikkaa pihalta
Liikenneyhteydet:
Bussipysäkki 200 m, Juna-asema 1,3 km, Lentoasema 10,6 km
Kartta
Tietoa ilmoittajasta
ScanReal Oy LKV
Näytä kaikki saman ilmoittajan kohteetOpus Business Park, Hitsaajankatu 24
00810
Helsinki




























