Uudet käyttö- ja sopimusehdot
Päivitämme käyttö- ja sopimusehtojamme. Uudet ehdot ovat voimassa 1.5.2025 alkaen. Tutustu ehtoihin
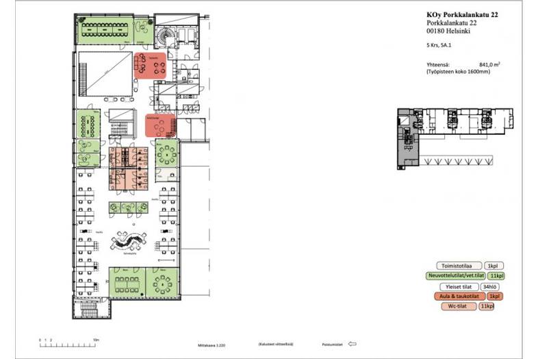
Porkkalankatu 22 Ruoholahti, Helsinki
00180Tyyppi
Toimisto
Koko
1 760 m²
Kerros
4 / 6
Vuokra
Kysy hintaa!
Moderni, kahteen kerrokseen jakautuva 1760 m² toimistotilaa Ruoholahdessa
Muuttovalmis toimistokokonaisuus kahteen kerrokseen jakaantuen, kerrokset on yhdistetty aukolla toisiinsa tilan yhtenäistämiseksi. Avotoimistoa, runsaasti neukkareita, vetäytymishuoneita. Aula- ja keittiölounge korkeaa avonaista tilaa yhteisölliseen oleiluun. Tummat värivalinnat. Mahdollisuus ylimmän kerroksen parvekkeellisen tapahtumatilan erillisvuokraukseen tai yhdistämiseen tähän tilakokonaisuuteen (235 m²).
Kiinteistö sijaitsee Ruoholahdessa erinomaisten kulkuyhteyksien varrella. Keskustan suunnasta kulkevat metro, raitiovaunu, länsisuunnan bussit sekä Baana, kevyen liikenteen väylä Kiasmalta Ruoholahteen.
Tilat räätälöidään vuokralaisen toiveiden mukaan.
- Pysäköinti
- Aulapalvelu
- Lounasravintola
- Energiatehokkuusohjelma
- Vuokrattavaa kokoustilaa
Asiakasyritysten käytössä ovat monipuoliset palvelut kuten aula- ja pitopalvelu, lounasravintola, tilavarauksia ja viestimistä helpottava extranet sekä erikseen vuokrattavia neuvotteluhuoneita. Modernit ja viihtyisät toimistotilat muokataan aina käyttäjien tarpeisiin soveltuviksi. Merellisyys ja Ruoholahden rakennuskannan teollinen historia tekevät alueesta mielenkiintoisen.
Kiinteistö on saavuttanut kansainvälisen BREEAM® –ympäristösertifioinnin vuonna 2018. Sertifioinnin taso on Excellent.
Naapurissa on kauppakeskus Ruoholahti liikkeineen ja palveluineen, lääkäriasema ja sairaala. Lähellä sijaitsee myös Ruoholahden ala-aste, Helsingin Konservatorio ja Helsingin kansainvälinen koulu, hotelli, kulttuurikeskus Kaapelitehdas ja Salmisaaren Liikuntakeskus.
Perustiedot
Tyyppi:
Toimisto
Sopimustyyppi:
Vuokrataan
Osoite:
Porkkalankatu 22, 00180 Helsinki
Kaupunginosa:
Ruoholahti
Tilan koko
Kokonaispinta-ala:
1760 m²
Rakennustiedot
Rakennusvuosi:
2008
Energialuokka:
F
Lisätiedot
Kerros:
4 / 6
Kartta
Tietoa ilmoittajasta
ScanReal Oy LKV
Näytä kaikki saman ilmoittajan kohteetOpus Business Park, Hitsaajankatu 24
00810
Helsinki




















































