Uudet käyttö- ja sopimusehdot
Päivitämme käyttö- ja sopimusehtojamme. Uudet ehdot ovat voimassa 1.5.2025 alkaen. Tutustu ehtoihin
Meiramitie 3 Koivuhaka, Vantaa
01510Tyyppi
Varastotila
Koko
2 398 m²
Vuokra
Kysy hintaa!
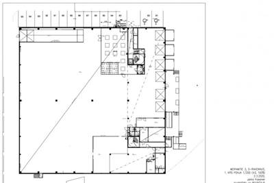
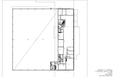
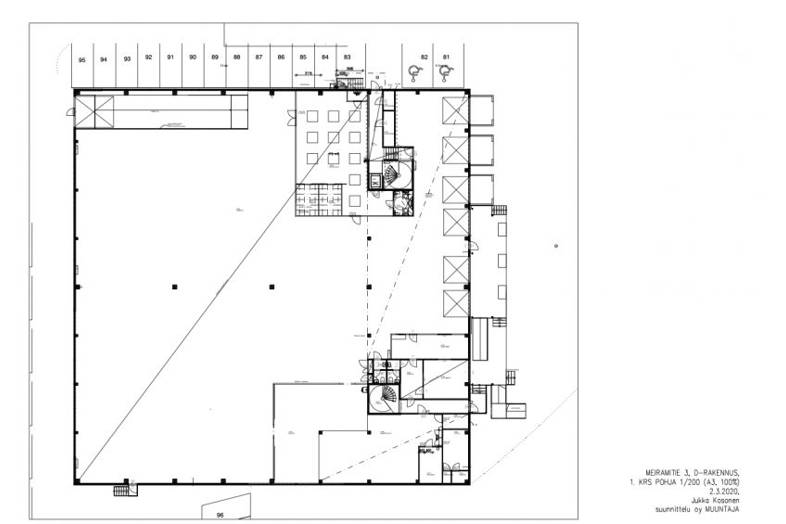
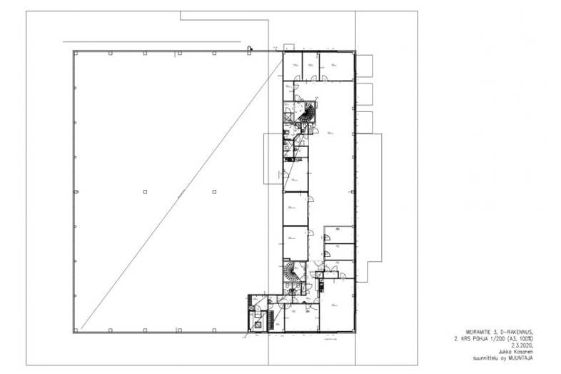
Siistiä varasto- (1900 m²) ja toimistotilaa (496 m²) Koivuhaassa Vantaalla
Hyvä ja siisti varasto- ja toimistokiinteistö lähellä lentokenttää.
Korkeassa varasto-osassa pistekuorma 5 t, ja tasainen kuorma 3 t ja korkeus 8 m. Matalammassa osassa ja lastauslaitureilla pistekuorma 3 t ja tasainen 10 t ja korkeus 4 m. Kolme lastaustaskua sekä kolmet nosto-ovet lastauslaitureille
Toisen kerroksen toimistokokonaisuuteen sisältyy lisäksi saunatilat.
Meiramitie 3 vuonna 2009 valmistunut, moderni varastokohde sijaitsee hyvällä paikalla, Tuusulantien ja Helsinki-Vantaan lentokentän läheisyydessä.
Kiinteistön tilat soveltuvat erinomaisesti yrityksille, jotka tarvitsevat sekä varastotilaa että toimistoa.
Meiramitie 3 kiinteistö koostuu 4 erillisestä varastorakennuksesta.
Perustiedot
Tyyppi:
Varastotila, Toimisto
Sopimustyyppi:
Vuokrataan
Osoite:
Meiramitie 3, 01510 Vantaa
Kaupunginosa:
Koivuhaka
Tilan koko
Kokonaispinta-ala:
2398 m²
Tilan jakautuminen tilatyyppien mukaan
| Tilatyypit | Min m² | Max m² | €/m²/kk |
|---|---|---|---|
| Varastotila | 1 902 | ||
| Toimisto | 496 |
Rakennustiedot
Rakennusvuosi:
2009
Energialuokka:
D
Ympäristö
Liikenneyhteydet:
Bussipysäkki 100 m, Juna-asema 2,3 km, Lentoasema 2,6 km
Tietoa ilmoittajasta
ScanReal Oy LKV
Näytä kaikki saman ilmoittajan kohteetOpus Business Park, Hitsaajankatu 24
00810
Helsinki












