Uudet käyttö- ja sopimusehdot
Päivitämme käyttö- ja sopimusehtojamme. Uudet ehdot ovat voimassa 1.5.2025 alkaen. Tutustu ehtoihin
Martinkyläntie 39 A Varisto, Vantaa
01720Tyyppi
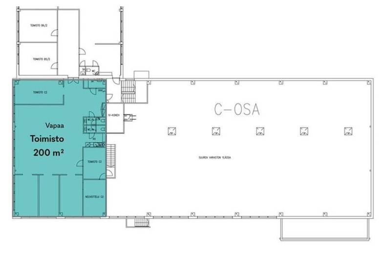
Toimisto
Koko
200 m²
Kerros
1 / 2
Vuokra
Kysy hintaa!
Korkea 1. kerroksen 200 m² toimistotila loistavien liikenneyhteyksien päässä Vantaan Varistossa, aivan Kehä III vieressä.
Tilakokonaisuuteen kuuluu avotoimisto, neuvottelu- ja toimistohuoneita, 2 vessaa, keittiökomero sekä siivouskomero. Tilan vapaa huonekorkeus on n. 3,35 m.
Kehä III:n välittömässä läheisyydessä, Vantaan Variston yritysalueella sijaitseva Martinkyläntie 39 A pitää sisällään useita erilaisia yhdessä tai erikseen vuokrattavia toimisto- ja varastotiloja. 2-kerroksisen kiinteistön tilat tarjoavat oivalliset lähtökohdat vuokralaisyrityksen tarpeiden ja toiveiden mukaiselle räätälöinnille.
Rakennuksen B osa on valmistunut vuonna 1969. Lisärakentamista on tehty vuosina 1979 (A osa), 1982 (C osa) ja 1992 (D osa).
Pihalla on 66 merkittyä autopaikkaa, joista osalla on lämmityspisteet.
Kiinteistössä vuokralaisten käytössä vuokrattavat saunatilat.
Perustiedot
Tyyppi:
Toimisto
Sopimustyyppi:
Vuokrataan
Osoite:
Martinkyläntie 39 A, 01720 Vantaa
Kaupunginosa:
Varisto
Tilan koko
Kokonaispinta-ala:
200 m²
Rakennustiedot
Energialuokka:
Ei lain edellyttämää energiatodistusta
Lisätiedot
Kerros:
1 / 2
Kartta
Tietoa ilmoittajasta
ScanReal Oy LKV
Näytä kaikki saman ilmoittajan kohteetOpus Business Park, Hitsaajankatu 24
00810
Helsinki





