Uudet käyttö- ja sopimusehdot
Päivitämme käyttö- ja sopimusehtojamme. Uudet ehdot ovat voimassa 1.5.2025 alkaen. Tutustu ehtoihin
Keilaranta 13-17 Keilaniemi, Espoo
02150Tyyppi
Toimisto
Koko
255 m²
Kerros
5 / 7
Vuokra
Kysy hintaa!
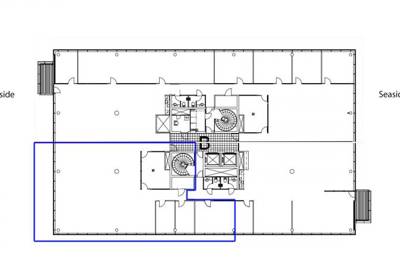
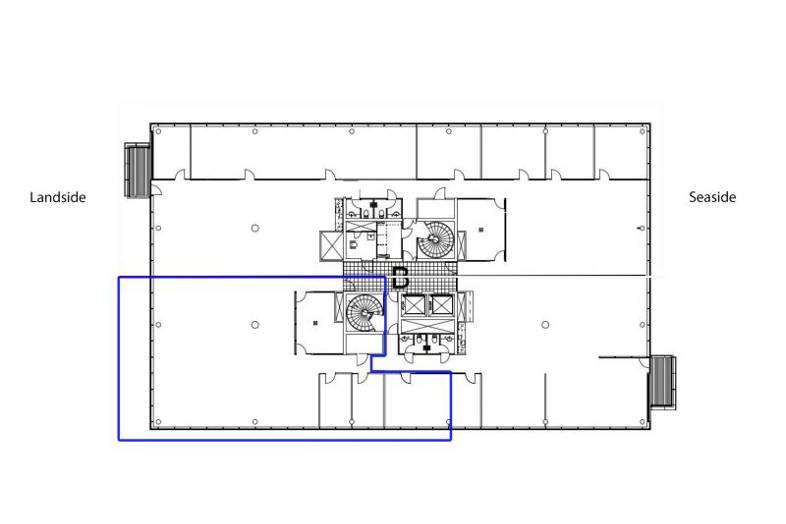
Laadukas 255 m² toimisto meren äärellä Keilaniemessä
HTC Waterfrontin B-talon viidennestä kerroksesta moderni ja toimiva toimistotila. Tila on muokattavissa käyttäjän tarpeiden mukaan.
HTC Waterfront Keilaniemi on helposti saavutettavissa niin julkisilla liikennevälineillä kuin omalla autollakin
- Kehätien ja Länsiväylän liittymät minuutin päässä
- Keilaniemen metroasema n. 5 minuutin kävelymatkan päässä
- Alueella on runsaasti myös kevyen liikenteen väyliä
Kiinteistössä kattavat palvelut:
- Aulapalvelut (2 erillistä aulaa)
- 1. kerroksen neuvottelutilat erilllisveloituksella, suurin kokoustila n. 50-60 hengelle
- Suosittu ravintola, joka tarjoaa myös catering-palvelut (Ravintola auki myös lounasaikojen ulkopuolella)
- Siivous-ja pesulapalvelut
- Turvapalvelut
- Parturi-kampaamo
- Autopesu
- Hieronta
- Suihku-ja pukuhuonetilat työmatkaliikkujille
- Kuntosali
- Maanalainen pysäköintitaso sekä pihapaikoitus
- Runsaasti vieraspaikkoja
- Sähköautojen latauspisteitä
Perustiedot
Tyyppi:
Toimisto
Sopimustyyppi:
Vuokrataan
Osoite:
Keilaranta 13-17, 02150 Espoo
Kaupunginosa:
Keilaniemi
Tilan koko
Kokonaispinta-ala:
255 m²
Rakennustiedot
Rakennusvuosi:
2008
Energialuokka:
Ei lain edellyttämää energiatodistusta
Lisätiedot
Kerros:
5 / 7
Tietoa ilmoittajasta
ScanReal Oy LKV
Näytä kaikki saman ilmoittajan kohteetOpus Business Park, Hitsaajankatu 24
00810
Helsinki
































