Uudet käyttö- ja sopimusehdot
Päivitämme käyttö- ja sopimusehtojamme. Uudet ehdot ovat voimassa 1.5.2025 alkaen. Tutustu ehtoihin
Itämerenkatu 1 Ruoholahti, Helsinki
00180Tyyppi
Toimisto
Koko
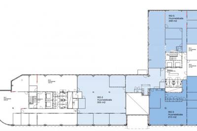
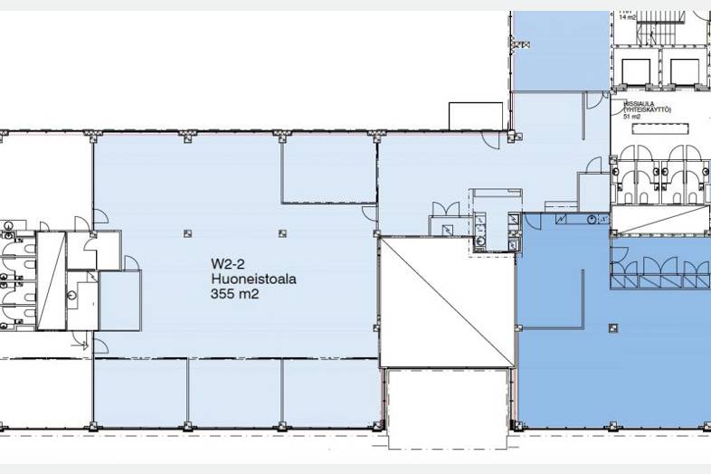
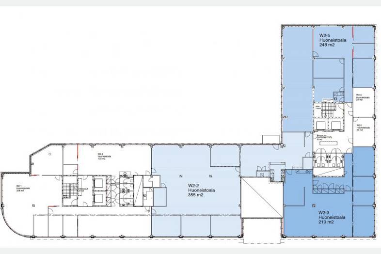
355 m²
Kerros
2 / 9
Vuokra
Kysy hintaa!
Merellinen työpaikka keskustan läheisyydessä
Keskeisellä paikalla Ruoholahdessa sijaitseva Kiinteistö Oy Westport on nykyaikaisella tekniikalla varustettu vuonna 1998 valmistunut rakennus. Kiinteistön tehokkaat toimistotilat soveltuvat niin avotoimistoksi kuin myös huonetoimistoksi vuokralaisen toivomusten mukaisesti.
Ilmoituksen kuvat ovat yleskuvia kiinteistön eri tiloista.
Kohteessa on oma lounasravintola ja neuvottelukeskus, jossa on erikokoisia neuvotteluhuoneita tarpeen mukaan. Kaikki neuvotteluhuoneet on varustettu nykyaikaisella tekniikalla. Yläkerrassa on sauna- ja kokoustilat yritysten omien tilaisuuksien järjestämistä varten.
Westport tarjoaa hyvän sijainnin käyttäjälle, joka liikkuu julkisilla liikennevälineillä tai omalla autolla.
- Jäähdytetty ilmanvaihto
- Aulapalvelut
- Edustustilat
- Lounasravintola
- Sauna
- Vuokrattavia neuvottelutiloja
Perustiedot
Tyyppi:
Toimisto
Sopimustyyppi:
Vuokrataan
Osoite:
Itämerenkatu 1, 00180 Helsinki
Kaupunginosa:
Ruoholahti
Tilan koko
Kokonaispinta-ala:
355 m²
Rakennustiedot
Rakennusvuosi:
1998
Energialuokka:
Ei lain edellyttämää energiatodistusta
Lisätiedot
Kerros:
2 / 9
Kartta
Tietoa ilmoittajasta
ScanReal Oy LKV
Näytä kaikki saman ilmoittajan kohteetOpus Business Park, Hitsaajankatu 24
00810
Helsinki
























