Uudet käyttö- ja sopimusehdot
Päivitämme käyttö- ja sopimusehtojamme. Uudet ehdot ovat voimassa 1.5.2025 alkaen. Tutustu ehtoihin
Fredrikinkatu 48 Kamppi, Helsinki
00100Tyyppi
Toimisto
Koko
218 m²
Kerros
6
Vuokra
Kysy hintaa!
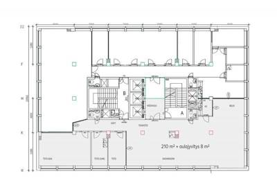
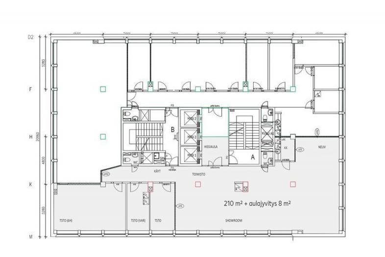
Valoisa 218,5 m² toimisto hyvällä paikalla Kampin Autotalokorttelissa
Tyylikäs ja valoisa, kuudennen kerroksen avara toimistotila josta seesteiset näkymät upealle Fredrikinkadulle. Tilassa on sekä huoneita että avotilaa, minkä lisäksi oma keittiö, wc-tilat ja taukohuoneet viihtyvyyden takaamiseksi.
Freda 48-talossa sijaitsevaan tilaan on sisäänkäynti Eteläisen Rautatiekadun puolelta.
Helsingin Fredrikinkatu 48:n toimitilakiinteistö on valmistunut perinteikkääseen Autotalokortteliin vuonna 1962. Kiinteistö on käynyt läpi perusteellisen korjaushankkeen, jossa sen toimitiloja on avarrettu ja tehty avotiloiksi soveltuviksi.
Kampin autotalokortteli sijaitsee näkyvällä paikalla Kampin kauppakeskuksen vieressä. Kohteeseen on erinomaiset julkiset kulkuyhteydet metrolla, raitiovaunulla ja busseilla. Yksityisautoille on maanalaista pysäköintitilaa korttelin omassa autohallissa, jonne on suora hissiyhteys toimistokerroksista. Pyöräilijöille on pyöräparkki.
Perustiedot
Tyyppi:
Toimisto
Sopimustyyppi:
Vuokrataan
Osoite:
Fredrikinkatu 48, 00100 Helsinki
Kaupunginosa:
Kamppi
Tilan koko
Kokonaispinta-ala:
218 m²
Rakennustiedot
Rakennusvuosi:
1958
Energialuokka:
F
Lisätiedot
Kerros:
6
Ympäristö
Pysäköinti:
Kiinteistössä oma parkkihalli.
Lähipalvelut:
Kampin keskuksen monipuoliset palvelut. Kiinteistössä on autohalli, pyöräparkki suihkuineen ja ravintolamaailma.
Liikenneyhteydet:
Kampin metroasema ja linja-autoasema aivan vieressä.
Metroasema 100 m, Raitiovaunupysäkki alle 100 m, Bussipysäkki alle 100 m, Juna-asema 700 m, Lentoasema 16,6 km.
Kartta
Tietoa ilmoittajasta
ScanReal Oy LKV
Näytä kaikki saman ilmoittajan kohteetOpus Business Park, Hitsaajankatu 24
00810
Helsinki


























