Uudet käyttö- ja sopimusehdot
Päivitämme käyttö- ja sopimusehtojamme. Uudet ehdot ovat voimassa 1.5.2025 alkaen. Tutustu ehtoihin
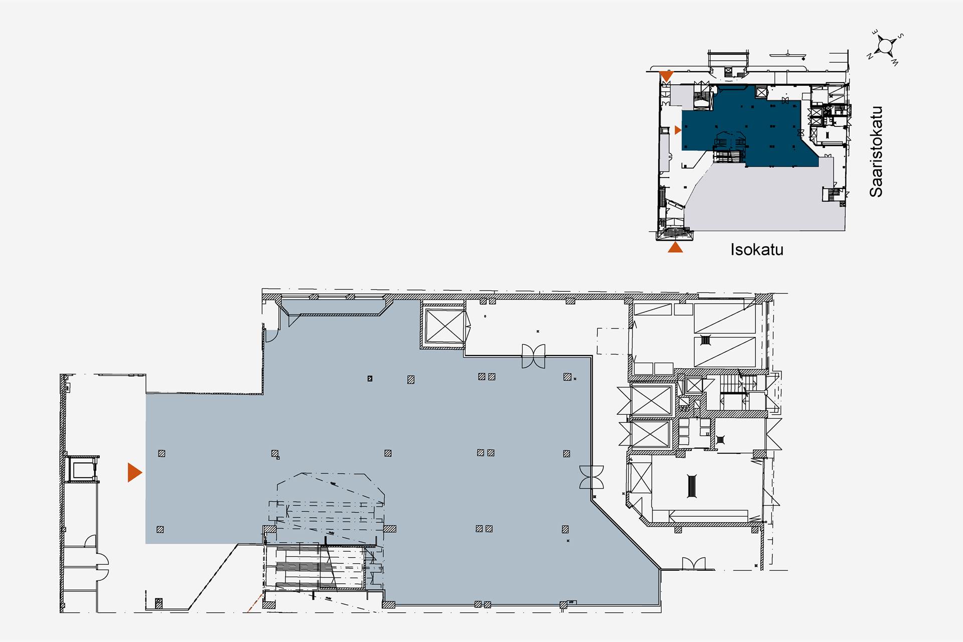
Aapistie 1 Kontinkangas, Oulu
90220Tyyppi
Toimisto
Koko
257 m²
Kerros
3
Vuokra
Kysy hintaa!
Saatavilla
Heti vapaa
Perustiedot
Rakennustiedot
Lisätiedot
Ympäristö
Linkit
Kartta
Tietoa ilmoittajasta
LähiTapiola Kiinteistövarainhoito Oy
Näytä kaikki saman ilmoittajan kohteetRevontulenkuja 1
02010
Espoo
Olemme LähiTapiola-ryhmän omistama kiinteistöjen asiantuntijayritys. Hoidamme vastuullisesti sijoittaja-asiakkaidemme kiinteistövarallisuutta ja tarjoamme laadukkaat ja toimivat toimitilat sekä asunnot vuokralaisasiakkaidemme tarpeita vastaavasti. Olemme Suomen suurimpia kiinteistövarainhoitajia 2,8 miljardin hallinnoitavalla kiinteistövarallisuudellamme. 50 kiinteistöalan asiantuntijaamme työskentelevät 31 paikkakunnalla sijaitsevien, LähiTapiolan omistamien toimitilojen ja asuntojen parissa.



































































