Uudet käyttö- ja sopimusehdot
Päivitämme käyttö- ja sopimusehtojamme. Uudet ehdot ovat voimassa 1.5.2025 alkaen. Tutustu ehtoihin
Pajasuora 5 Oulu
90830Tyyppi
Tuotantotila
Koko
921 m²
Kerros
1 / 2
Myyntihinta
490 000 €
Saatavilla
Myydään vuokrattuna
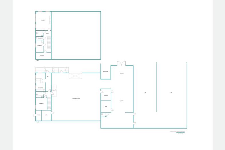
Tilaisuus ostaa omaksesi nykyaikaiset, vuonna 2013 valmistuneet tuotantotilat Annalankankaan teollisuusalueelta Haukiputaan Keskustan tuntumasta. Moottoritielle vain 4 km matka ja esim. Oulun Keskustaan reilu 20 km.
Myydään Kiinteistöosakeyhtiön koko osakekanta sekä yhtiön omistama 2316 m2 suuruinen kaavatontti ja sillä sijaitseva rakennus. Rakennus käsittää yli 200 m2 suuruisen tuotantotilan, useita toimisto-, tauko- ja sosiaalitiloja sekä vanhemman tuotantotilan, varastotiloja ja n. 250 m2 kylmää konehallitilaa. 2 korkeaa nosto-ovea, hallitilan korkeus on n. 5 metriä. Toimistotiloja sijaitsee kahdessa kerroksessa.
Uudella osalla on maalämpö lattialämmityksellä ja lattiamateriaalina hiertobetoni. Rakennuksessa on koneellinen ilmanvaihto lämmön talteenotolla.
Tilat myydään vuokrattuna ja saat hyvän vuokratuoton sijoituksellesi.
Lisätiedot:
Hilkka Kivelä p. 050 564 8998 tai
hilkka.kivela@roof.fi
Kaksi vahvaa yhdistyvät! Asuntokolmio on nyt osa Roof LKV:tä. Samat tutut välittäjät, nyt valtakunnallinen verkosto ja entistäkin tehokkaampi myyntikonsepti!
Lue lisää https://www.asuntokolmio.fi/blogijuttu/asuntokolmio-on-nyt-osa-roofia/
Perustiedot
Tyyppi:
Tuotantotila
Sopimustyyppi:
Myydään
Osoite:
Pajasuora 5, 90830 Oulu
Velaton hinta:
490 000 €
Myyntihinta:
490 000 €
Rakennustiedot
Rakennusvuosi:
2013
Lisätiedot
Saatavilla:
Myydään vuokrattuna
Kerros:
1 / 2
Ympäristö
Lähipalvelut:
Haukiputaan Keskusta 1,5 km, Oulun Keskusta 23 km.
Liikenneyhteydet:
Sujuvat yhteydet omalla autolla
Moottoritielle 4 km.
Kartta
Ota yhteyttä
Hilkka Kivelä
Myyntijohtaja, LKV
Näytä puhelinnumero
Lähetä yhteydenottopyyntö
Tietoa ilmoittajasta
Asuntokolmio Oy, Oulu
Näytä kaikki saman ilmoittajan kohteetPaljetie 5
90140
Oulu
































