Uudet käyttö- ja sopimusehdot
Päivitämme käyttö- ja sopimusehtojamme. Uudet ehdot ovat voimassa 1.5.2025 alkaen. Tutustu ehtoihin
Orapihlajatie 41 Haaga, Helsinki
00320Tyyppi
Toimisto
Koko
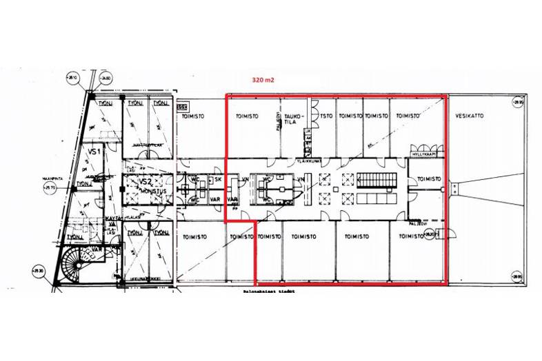
320 m²
Vuokra
Kysy hintaa!
Siistiä jäähdytettyä toimistotilaa Haagassa
Hyväkuntoista jäähdytettyä toimistotilaa noin 320 m2.
Toinen krs, jäähdytys ilmalämpöpumpuilla, laminaattilattia, Cat6-kaapelointi, taloon tulee valokaapeli.
Aula, 9 huonetta, 2 x wc, keittiö. Käynti kiinteistön pääsisäänkäynnin kautta kadun puolelta.
Loistavat liikenneyhteydet, Huopalahden asema kävelymatkan päässä, samoin bussilinjat.
Pihalta mahdollista vuokrata autopaikkoja. Hiljainen katu, jonka varrella hyvin parkkitilaa.
TARJOUS: Ensimmäinen vuosi 2560 eur/kk, jonka jälkeen 3520 eur/kk. Edellytyksenä 3 vuoden sopimus.
Sähkö erilliskorvaus.
Vapautuu sopimuksen mukaan.
Sovi esittely: tapio@realsale.fi tai p. 040 5588 226
Vuokra: Kysy
Perustiedot
Tyyppi:
Toimisto
Sopimustyyppi:
Vuokrataan
Osoite:
Orapihlajatie 41, 00320 Helsinki
Kaupunginosa:
Haaga
Tilan koko
Kokonaispinta-ala:
320 m²
Rakennustiedot
Energialuokka:
H (ei luokitusta)
Ympäristö
Pysäköinti:
Pihalla ja kadulla
Kartta
Tietoa ilmoittajasta
Real Sale Oy
Näytä kaikki saman ilmoittajan kohteetLimingantie 43B
00560
Helsinki


























