Uudet käyttö- ja sopimusehdot
Päivitämme käyttö- ja sopimusehtojamme. Uudet ehdot ovat voimassa 1.5.2025 alkaen. Tutustu ehtoihin
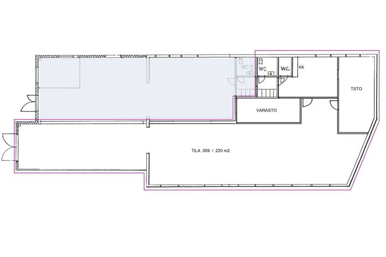
Lähellä Turun keskustaa vuokrattavana työ- / varasto- / toimistotila. Tilassa erillinen toimistohuone, oma wc ja keittiö.
Tilan ovet maan tasalla josta lastaus-/purku onnistuu helposti.
Hyvät kulkuyhteydet Hämeentien ja Helsingintien läheisyydessä, lisäksi pihalla paikoitustilaa.
Näytöt sopimuksen mukaan, ota yhteyttä ja kysy lisää.
Perustiedot
Tyyppi:
Toimisto
Sopimustyyppi:
Vuokrataan
Osoite:
Hakakatu 7-9, 20540 Turku
Rakennustiedot
Kiinteistön nimi:
Työ-/ varasto-/ toimistotila Turun Nummessa
Ota yhteyttä
PL
Piia Lahtonen
Näytä puhelinnumero
Lähetä yhteydenottopyyntö
Tietoa ilmoittajasta
Kiinteistöyhtymä Lahtonen
Näytä kaikki saman ilmoittajan kohteetIso-Heikkiläntie 8
20200
Turku






















