Uudet käyttö- ja sopimusehdot
Päivitämme käyttö- ja sopimusehtojamme. Uudet ehdot ovat voimassa 1.5.2025 alkaen. Tutustu ehtoihin
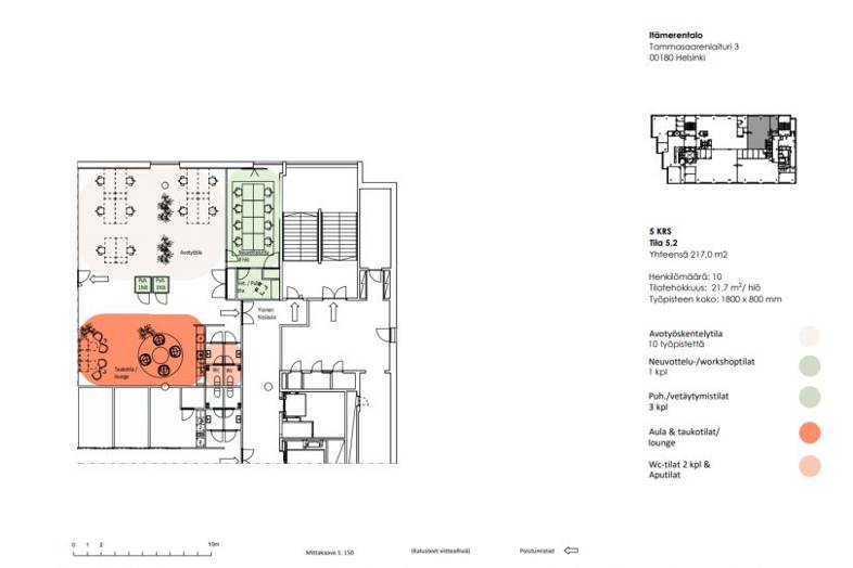
Tammasaarenlaituri 3 Ruoholahti, Helsinki
00180Tyyppi
Toimisto
Koko
217 m²
Kerros
5
Vuokra
Kysy hintaa!
Valoisaa, avaraa ja korkeaa toimistotilaa merinäkymällä Ruoholahdesta. Tila remontoidaan vuokralaisen tarpeet ja toiveet huomioiden. Kiinteistössä palvelee aulavastaanotto, kokouskeskus ja lounasravintola. Ota yhteyttä ja sovi esittely, vuokrauspalvelumme on tilanhakijoille maksuton.
Itämerentalo
Sijainti: Ruoholahti
Perustiedot
Tyyppi:
Toimisto
Sopimustyyppi:
Vuokrataan
Osoite:
Tammasaarenlaituri 3, 00180 Helsinki
Kaupunginosa:
Ruoholahti
Tilan koko
Kokonaispinta-ala:
217 m²
Rakennustiedot
Energialuokka:
Ei lain edellyttämää energiatodistusta
Lisätiedot
Kerros:
5
Ympäristö
Pysäköinti:
Pysäköinti on mahdollista autohallissa, pihalla ja P-Ruoholahdessa.
Lähipalvelut:
Kauppakeskus Ruoholahden kaikenkattavat palvelut sijaitsevat lyhyen kävelymatkan päässä.
Liikenneyhteydet:
Ruoholahden metroasemalle on vajaa kilometri. Lähimmälle bussipysäkille vain 250m ja raitiovaunupysäkille 400m.
Kartta
Tietoa ilmoittajasta

Senaatin Notariaatti Oy LKV
Näytä kaikki saman ilmoittajan kohteetLämmittäjänkatu 4 A
00880
HELSINKI














