Uudet käyttö- ja sopimusehdot
Päivitämme käyttö- ja sopimusehtojamme. Uudet ehdot ovat voimassa 1.5.2025 alkaen. Tutustu ehtoihin
Pavintie 2 Hakkila, Vantaa
01260Tyyppi
Varastotila
Koko
3 654 m²
Vuokra
Kysy hintaa!
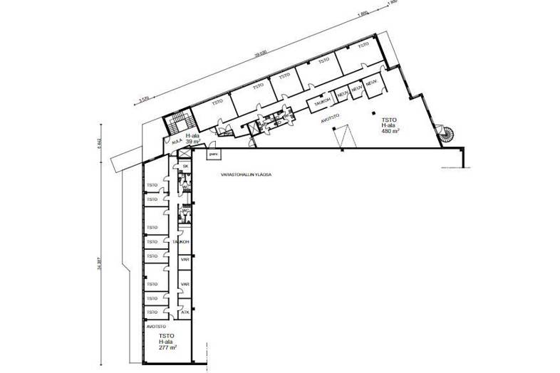
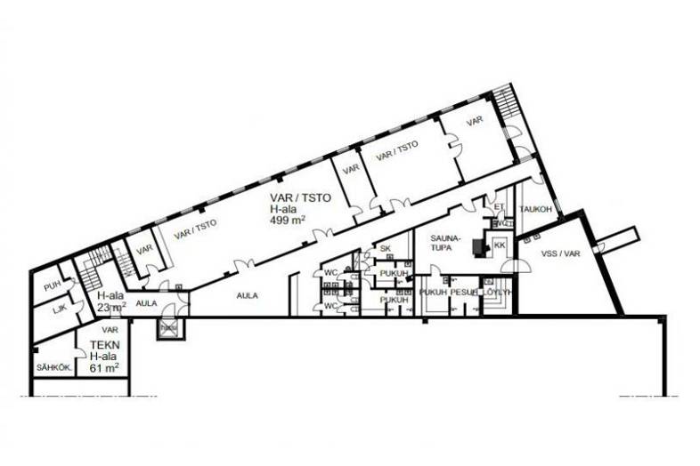
Vuokrataan omalla aidatulla tontilla sijaitseva siistikuntoinen varasto/tuotanto ja toimistotalo Vantaan Hakkilassa. 2.275m2 varastosta 1.664m2 on 7m korkeaa, loput on noin 3 metriä korkeaa pienvarastointi ja tavarankäsittelytilaa. Kaksi lastaustaskua ja katettu laituri palvelevat varaston toimintoja. Talossa on myös 796m2 toimistoa sekä 583 monikäyttötilaa. Kellarikerroksessa sijaitsevat pukuhuoneet, sauna ja suihkutilat sekä keittiö ja taukotilat. Tämä kiinteistö tarjoaa monipuolisia toimintamahdollisuuksia varastointi,- tuotanto ja toimistokäyttöön yhdelle tai useammalle käyttäjälle. SOITA ja SOVI ESITTELY, Puh. 09-7745 100.
Teollisuus ja varastointi
Sijainti: Hakkilassa, Lahdenväylä varrella
Perustiedot
Tyyppi:
Varastotila, Toimisto, Muu
Sopimustyyppi:
Vuokrataan
Osoite:
Pavintie 2, 01260 Vantaa
Kaupunginosa:
Hakkila
Tilan koko
Kokonaispinta-ala:
3654 m²
Tilan jakautuminen tilatyyppien mukaan
| Tilatyypit | Min m² | Max m² | €/m²/kk |
|---|---|---|---|
| Varastotila | 2 275 | ||
| Toimisto | 796 | ||
| Muu | 583 |
Ympäristö
Pysäköinti:
Pihalla runsaasti parkkitilaa
Liikenneyhteydet:
Lahdentie sekä sujuva julkinen liikenne.
Kartta
Tietoa ilmoittajasta

Senaatin Notariaatti Oy LKV
Näytä kaikki saman ilmoittajan kohteetLämmittäjänkatu 4 A
00880
HELSINKI






















