Uudet käyttö- ja sopimusehdot
Päivitämme käyttö- ja sopimusehtojamme. Uudet ehdot ovat voimassa 1.5.2025 alkaen. Tutustu ehtoihin
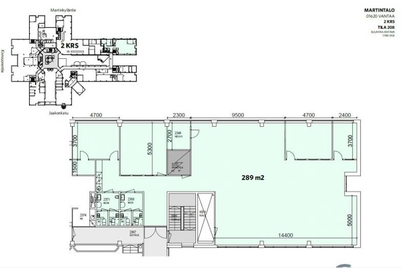
Jaakonkatu 2 Vantaankoski, Vantaa
01620Tyyppi
Toimisto
Koko
289 m²
Kerros
2 / 4
Vuokra
Kysy hintaa!
Muuntojoustava, moderni 2. kerroksen 289m2 pääosin avotoimistotila tehokkaalla jäähdytyksellä varustettuna. Tämä tyylikäs toimistokeskus "Martintalo" sijaitsee hyvien liikenneyhteyksien varrelta Vantaankoskella, juna-asema on aivan vieressä. Kiinteistössä on aulapalvelu, neuvottelutilaa, lounasravintola, kahvila, saunaosasto, kuntosali sekä sosiaalitilat. Ota yhteyttä ja sovi esittely, vuokrauspalvelumme on tilanhakijoille maksutonta.
Martintalo Vantaan Jaakonkatu 2:ssa on alun perin rakennettu Siemensin Suomen pääkonttoriksi. Sittemmin tämä näyttävä rakennus Kehä III:n ja Hämeenlinnanväylän kupeesta on tarjonnut erinomaiset puitteet työskentelylle useille eri alojen yrityksille.
Sijainti: Vantaankoski/Martinlaakso kehä III:n läheisyydessä, lentokentälle noin 10 min. ajomatka.
Perustiedot
Tyyppi:
Toimisto
Sopimustyyppi:
Vuokrataan
Osoite:
Jaakonkatu 2, 01620 Vantaa
Kaupunginosa:
Vantaankoski
Tilan koko
Kokonaispinta-ala:
289 m²
Rakennustiedot
Rakennusvuosi:
1992
Energialuokka:
Ei lain edellyttämää energiatodistusta
Lisätiedot
Kerros:
2 / 4
Muita tietoja:
Tarvittaessa vuokrattavana varastotilaa.
Ympäristö
Pysäköinti:
Paikoitustalossa runsaasti autopaikkoja, myös sähköautoille. Asiakaspaikoitustilaa löytyy kiinteistön edestä.
Lähipalvelut:
- aulapalvelu
- neuvottelutilat
- auditorio
- edustustilaa
- lounasravintola Antell
- kahvila
- catering
- saunaosasto
- kuntosali
- sosiaalitilat
- sähköautojen lataus
Liikenneyhteydet:
Vantaankosken juna-aseman on ihan vieressä. Kehä ja Tampereenväylä sijaitsevat aivan lähellä. Lentokentälle junalla 15 min.
Kartta
Tietoa ilmoittajasta

Senaatin Notariaatti Oy LKV
Näytä kaikki saman ilmoittajan kohteetLämmittäjänkatu 4 A
00880
HELSINKI






















