Uudet käyttö- ja sopimusehdot
Päivitämme käyttö- ja sopimusehtojamme. Uudet ehdot ovat voimassa 1.5.2025 alkaen. Tutustu ehtoihin
Vuorikatu 20 Kluuvi, Helsinki
00100Tyyppi
Toimisto
Koko
221 - 645 m²
Kerros
4
Vuokra
Kysy hintaa!
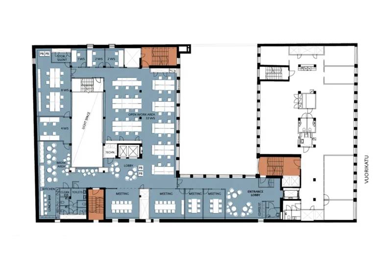
Muuttovalmis kaunis moderni toimistotila rakennuksen 4. kerroksessa, joka on optimaalinen noin 40-50 työpisteelle. Tilassa on neuvottelu- ja tiimityötiloja sekä avotyöpisteille paikkoja. Mukava lounge keittiöineen taukoiluun ja yhdessä oloon. Valokuilu keskellä tilaa tuo ilmavuutta toimistoon ja mukavat näkymät sisäpihalle piristävät päivää. Aivan loistava sijainti Helsingin ytimessä. Muutamalla askeleella Yliopiston metroasemalle.
Sisäänkulku taloon tapahtuu Vuorikadun puolelta hienosta aulatilasta. Omia parkkipaikkoja löytyy talon alta 16 kpl:tta. Parkkihallista suora yhteys toimistotilohin. Kiinteistöllä on oma viihtyisä, turvallinen ja suojaisa sisäpiha, jonka kautta kulku talon B-osaan.
Lisätiedot ja esittelyt 020 7290 710. Lisää kohteita www.premises.fi.
Kohteella ei ole lain edellyttämää energiatodistusta tai energialuokka ei tiedossa.
Perustiedot
Tyyppi:
Toimisto
Sopimustyyppi:
Vuokrataan
Osoite:
Vuorikatu 20, 00100 Helsinki
Kaupunginosa:
Kluuvi
Tilan koko
Kokonaispinta-ala:
645 m²
Tilan jakautuminen tilatyyppien mukaan
| Tilatyypit | Min m² | Max m² | €/m²/kk |
|---|---|---|---|
| Toimisto | 221 | 645 |
Lisätiedot
Kerros:
4
Ympäristö
Liikenneyhteydet:
Vuorikatu 20, sijaitsee keskeisellä paikalla Kluuvissa ja liikenneyhteydet ovat loistavat. Suora yhteys Rautatieasemalle, sekä metroon ja raitiotieyhteys kulkee aivan vierestä, samoin kuin useat linja-autot.
Kartta
Tietoa ilmoittajasta

CRE PREMISES
Näytä kaikki saman ilmoittajan kohteetVantaankoskentie 14
01670
VANTAA


















