Mannerheimintie 103 A Ruskeasuo, Helsinki

00280

Tyyppi

Toimisto

Koko

450 m²

Kerros

6

Vuokra

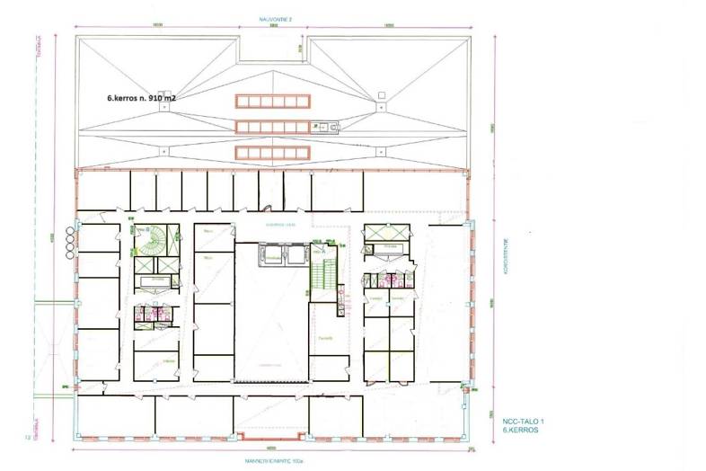
Vuokrataan laadukasta ja tehokasta toimistotilaa Mannerheimintieltä, Ruskeasuon alueelta, vuokrattava tila on 6. kerroksen 450m2 toimistotila. Kiinteistö Mannerheimintie 103A:n sijainti on erinomainen aivan Mannerheimintien varrella, heti Hämeenlinnan väylän ja Hakamäentien risteyksen tuntumassa josta on lyhyt matka niin keskustaan kuin lentokentälle. Julkisen liikenteen käyttäjiä palvelee Ruskeasuon Raitiovaunu- ja linja-autopysäkit jotka ovat aivan kiinteistön tuntumassa, muutaman minuutin kävelymatkan päässä. Oman auton käyttäjiä palvelee kiinteistön alakerrassa olevat maksulliset autohallipaikat, joko omaksi nimettynä tai pysäköintioikeutena. Kiinteistön vieressä on runsaasti kaupan palvelun tuottajia kuten K-market, Teboil Ruskeasuo, useat ravintolat ja kampaamo- ja parturitoimijat. Kiinteistö Mannerheimintie 103A tarjoaa kaikki modernit Business Parkin palvelut, kuten aulapalvelu, vuokrattavat neuvottelutilat, edustussaunatilat, kuntosali, pyöräparkki jne. Tervetuloa tutustumaan tähän kohteeseen. Kysy myös muita juuri teille sopivia toimitiloja, meidän kautta saat räätälöidyt tilavaihtoehdot. Palvelumme on vuokralaiselle veloitukseton. Lisätietoja: Jorma Ryynänen, puh. +358 40 708 4064, jorma.ryynanen@tuloskiinteistot.fi ja Otto Ahtola, puh. +358 40 042 2830, otto.ahtola@tuloskiinteistot.fi

Perustiedot

Tyyppi:
Toimisto
Sopimustyyppi:
Vuokrataan
Osoite:
Mannerheimintie 103 A, 00280 Helsinki
Kaupunginosa:
Ruskeasuo

Rakennustiedot

Kiinteistön nimi:
Laadukasta ja tehokasta toimistotilaa Ruskeasuolta
Rakennusvuosi:
2002

Lisätiedot

Kerros:
6

Linkit

Kartta

Ota yhteyttä

Tuloskiinteistöt Oy, Helsinki logotyyppi
Jorma Ryynänen
Jorma Ryynänen Commercial Real Estate Advisor LKV, LVV
Näytä puhelinnumero

Lähetä yhteydenottopyyntö

Tietosuojaseloste
This site is protected by reCAPTCHA and the Google Privacy Policy and Terms of Service apply.

Tietoa ilmoittajasta

Tuloskiinteistöt Oy, Helsinki logotyyppi

Tuloskiinteistöt on Suomen vanhimpia kaupallisen kiinteistöalan asiantuntijayrityksiä. Tarjoamme kattavasti palveluita kiinteistöjen vuokrauksen, kaupankäynnin ja kiinteistöarviointien toimeksiannoissa, sekä tarjoamme kiinteistöliiketoiminnan konsultointipalveluita. Tuloskiinteistöt toimii koko maassa, ja teemme kauppoja ja vuokrauksia kaikkialla Suomessa. Olemme kumppanisi kaikissa toimitila- ja sijoituskiinteistöihin liittyvissä asioissa.

Ilmoittajan muut kohteet