Elektroniikkatie 6 Linnanmaa, Oulu

90590

Tyyppi

Toimisto

Koko

735 m²

Vuokra

Saatavilla

Heti vapaa

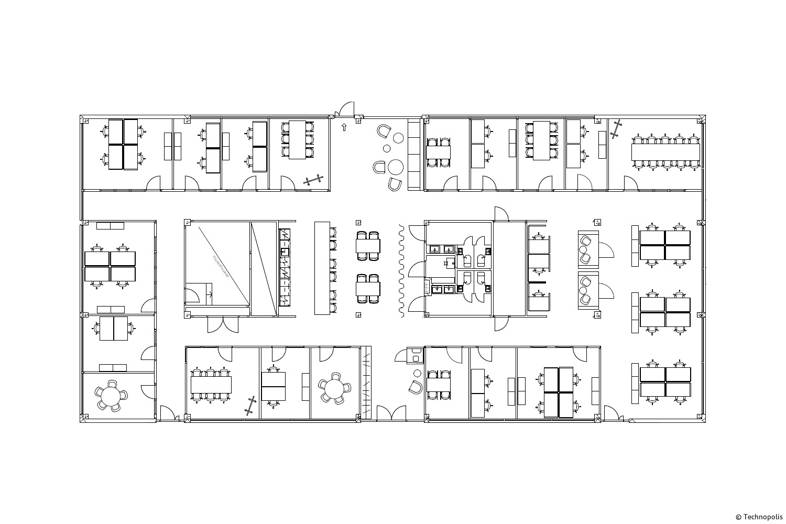
Etsitkö tilavaa, modernia ja muunneltavaa toimistotilaa yrityksellesi? Tämä suuri kolmannen kerroksen toimistotila Technopolis Linnanmaalta tarjoaa erinomaiset puitteet liiketoimintasi kasvulle ja päivittäiselle toiminnalle. Tila on suunniteltu niin, että se täyttää nykyaikaisen työympäristön vaatimukset ja mahdollistaa sekä yksityisyyden että yhteistyön.
 
Toimistossa on avotila, joka on helposti muokattavissa tarpeidesi mukaan. Voit avata tilan suuremmaksi avotilaksi tai jakaa sen pienemmiksi yksiköiksi. Lisäksi tilassa on erikokoisia työ- ja neuvotteluhuoneita, jotka tarjoavat yksityisyyttä sekä mukautuvat hyvin myös erikokoisiin tiimityötiloihin.
 
Keittiö ja wc-tilat tuovat lisää käytännöllisyyttä arkeen ja mahdollistavat sujuvan työpäivän ilman tarvetta lähteä kiinteistön ulkopuolelle. Kiinteistössä on myös monipuoliset palvelut, jotka tukevat yrityksesi päivittäistä toimintaa, ja lähistöltä löytyy useita lounasravintoloita, joten työpäivän tauot sujuvat vaivattomasti.
 
Ilmoitettu neliömäärä sisältää jyvityksen kiinteistön yhteisistä tiloista. Tila on täydellinen valinta yritykselle, joka arvostaa modernia työympäristöä, hyviä liikenneyhteyksiä ja laajaa palvelutarjontaa. Elektroniikkatie 6 -kiinteistöllä on Gold-tason ylläpidon LEED-sertifikaatti. Ympäristösertifikaatti todentaa rakennuksen edelläkävijyyden ympäristöystävällisyydessä.
 
Tämä tila on muunneltavissa eri käyttötarkoituksiin ja tarjoaa mahdollisuuden räätälöidä tilaratkaisut yrityksesi tarpeiden mukaan. Ota yhteyttä ja varaa esittely – tule tutustumaan tilan mahdollisuuksiin paikan päällä ja suunnittele, miten tämä upea toimitila tukee yrityksesi kasvua ja menestystä!

Perustiedot

Tyyppi:
Toimisto
Sopimustyyppi:
Vuokrataan
Osoite:
Elektroniikkatie 6, 90590 Oulu
Kaupunginosa:
Linnanmaa

Tilan koko

Kokonaispinta-ala:
735 m²

Rakennustiedot

Kiinteistön nimi:
Technopolis Elektroniikkatie 6

Lisätiedot

Saatavilla:
Heti vapaa

Ympäristö

Pysäköinti:
Pysäköintipaikkoja löytyy ulkopysäköintialueelta kiinteistön edustalta.

Linkit

Kartta

Ota yhteyttä

Technopolis Holding Oyj logotyyppi
Tietosuojaseloste
This site is protected by reCAPTCHA and the Google Privacy Policy and Terms of Service apply.
Maija Väyrynen
Maija Väyrynen
Näytä puhelinnumero
MO
Myynti Technopolis Oulu