Uudet käyttö- ja sopimusehdot
Päivitämme käyttö- ja sopimusehtojamme. Uudet ehdot ovat voimassa 1.5.2025 alkaen. Tutustu ehtoihin
Pälkäneentie 13, Vallila Vallila, Helsinki
00510Tyyppi
Toimisto
Koko
20 m²
Vuokra
Kysy hintaa!
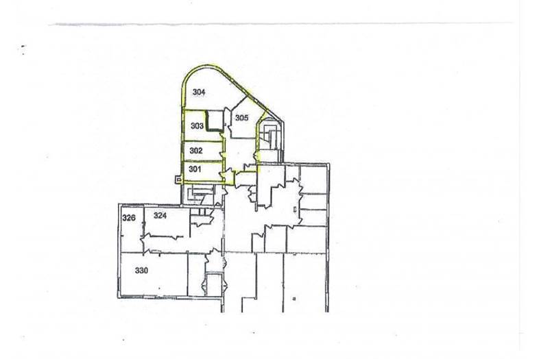
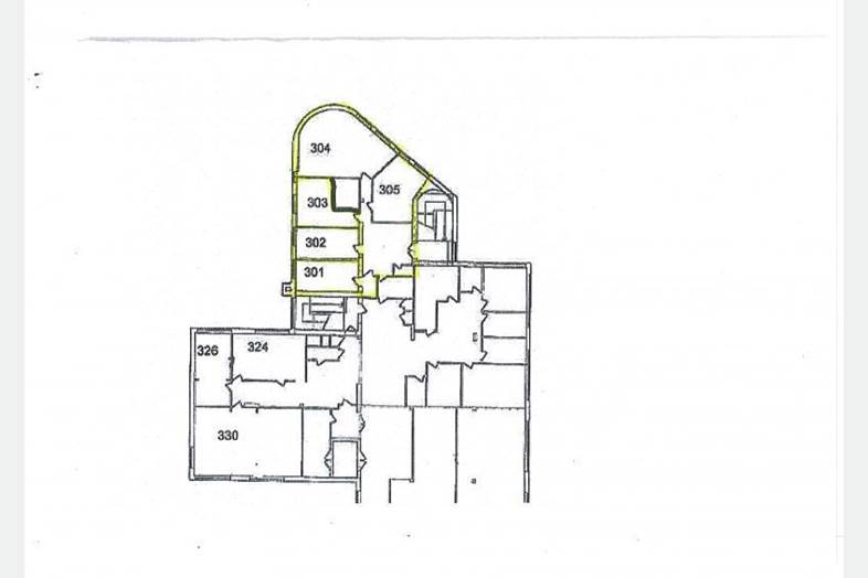
Vuokrataan entisestä Helsingin Teräshuonekalutehdas Oy:stä 19,5 m²:n toimistotila (302). Sisäänkäynti Nilsiänkadun puolelta. Huonekorkeus 3 metriä. Tila sijaitsee 3. kerroksessa.
Vuokralaisten yhteiskäytössä wc-tila, aula sekä keittiö.
Tavarahissi käytössä Pälkäneentien puolelta.
Vuokrapyyntö 312 euroa/kk+alv. Voidaan vuokrata myös alvittomana.
Perustiedot
Tyyppi:
Toimisto
Sopimustyyppi:
Vuokrataan
Osoite:
Pälkäneentie 13, Vallila, 00510 Helsinki
Kaupunginosa:
Vallila
Tilan koko
Kokonaispinta-ala:
20 m²
Rakennustiedot
Energialuokka:
Ei lain edellyttämää energiatodistusta
Kartta
Tietoa ilmoittajasta
Comreal Oy
Näytä kaikki saman ilmoittajan kohteetLäkkisepänkuja 6
00620
Helsinki
















