Uudet käyttö- ja sopimusehdot
Päivitämme käyttö- ja sopimusehtojamme. Uudet ehdot ovat voimassa 1.5.2025 alkaen. Tutustu ehtoihin
Pakkalantie 19 Virkamies, Vantaa
01510Tyyppi
Toimisto
Koko
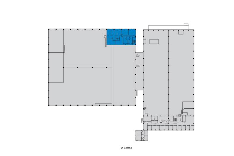
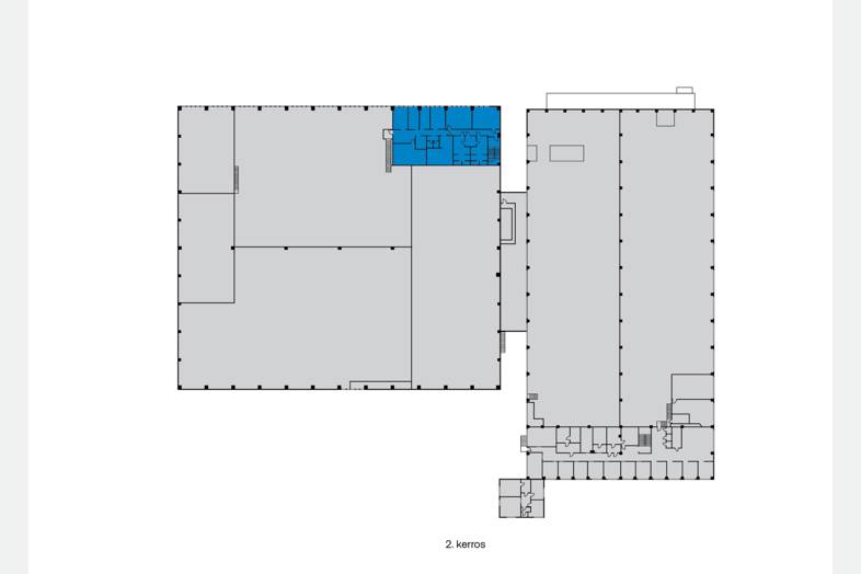
295 m²
Kerros
2
Vuokra
Kysy hintaa!
Vuokrataan remontoitua toimistotillaa kiinteistön toisesta kerroksesta.
Ainutlaatuisessa logistiikkakiinteistössä, Suomen neljänneksi suurimman kaupungin Vantaan sydämessä ja lentokentän läheisyydessä, vapaana toimisto- ja varastotilaa. Kiinteistö on helposti saavutettavissa Kehä III:lta (E18), josta on myös sujuvat yhteydet kaikille pääteille Helsingin seudulla.
Sijainti Helsinki-Vantaan lentokentän välittömässä läheisyydessä antaa tälle 9 190-neliöiselle teollisuuskiinteistölle uniikin leimansa.
Lisätietoja numerosta 020 7290 710. Lisää kohteita osoitteessa www.premises.fi.
Kohteella ei ole lain edellyttämää energiatodistusta tai energialuokka ei tiedossa.
Perustiedot
Tyyppi:
Toimisto
Sopimustyyppi:
Vuokrataan
Osoite:
Pakkalantie 19, 01510 Vantaa
Kaupunginosa:
Virkamies
Tilan koko
Kokonaispinta-ala:
295 m²
Lisätiedot
Kerros:
2
Ympäristö
Liikenneyhteydet:
Loistava sijainti lenokentän läheisyydessä, josta matkaa Helsingin keskustaan 10km. Alueella laaja valikoima kauppoja/ravintoloita sekä muita palveluja. Hyvät julkiset bussi sekä juna- yhteydet Keskustaan ja muualle vantaalle.
Kartta
Tietoa ilmoittajasta

CRE PREMISES
Näytä kaikki saman ilmoittajan kohteetVantaankoskentie 14
01670
VANTAA














