Uudet käyttö- ja sopimusehdot
Päivitämme käyttö- ja sopimusehtojamme. Uudet ehdot ovat voimassa 1.5.2025 alkaen. Tutustu ehtoihin
Pohjoisesplanadi 37 Kluuvi, Helsinki
00100Tyyppi
Toimisto
Koko
165 - 388 m²
Kerros
4
Vuokra
Kysy hintaa!
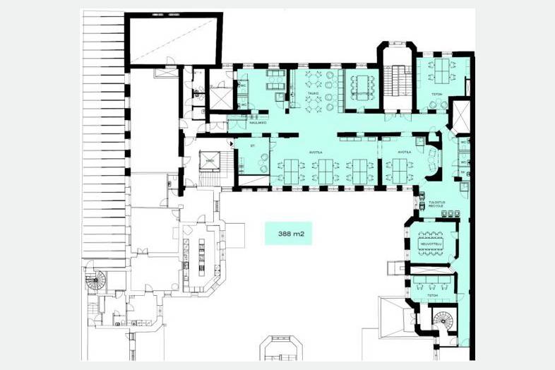
Tarjolla on tilava ja muunneltava 388 m² toimistotila Helsingin ydinkeskustan arvokiinteistössä Pohjoisesplanadilla. Tila sijaitsee kiinteistön neljännessä kerroksessa ja on mahdollista vuokrata kokonaisena tai jakaa kahdelle eri käyttäjälle!
Tilat ovat vapautumassa 1.6.2025 ja nyt etsitään seuraavaa / seuraavia toimijoita tiloihin!
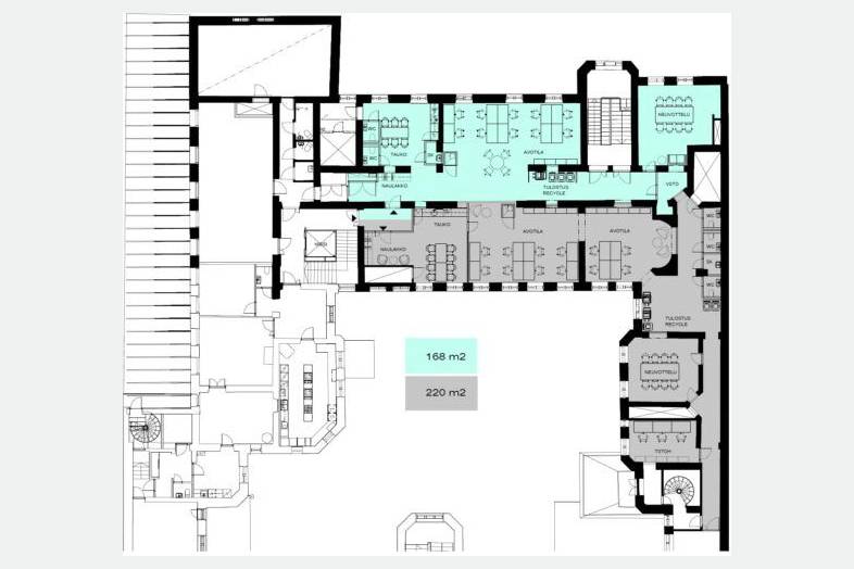
Tilat sijaitsevat rakennuksen neljännessä kerroksessa ja kokonaispinta-ala kerrokselle on 388m2. Tilat tarjoaa joustavuutta ja ovat mahdollista jakaa kahdelle käyttäjälle jolloin tilat jakautuvat 168m2 / 220m2 kokoisiksi tiloiksi.
Tilojen ominaisuudet:
+ Erinomainen pohjaratkaisu, joka mahdollistaa monipuolisen tilankäytön
+ Valoisa ja moderni työympäristö historiallisessa arvokiinteistössä
+ Sijainti keskustan sykkeessä, loistavien palveluiden ja kulkuyhteyksien äärellä
Kiinteistössä on kattavat nykyaikaiset toimistopalvelut, ja Pohjoisesplanadin ainutlaatuinen sijainti tekee tästä toimitilasta houkuttelevan vaihtoehdon niin pienille kuin suuremmillekin yrityksille.
Ota yhteyttä ja tule tutustumaan tähän huippusijainnilla sijaitsevaan toimitilaan! Vuokra: Hintatiedot pyydettäessä!
Perustiedot
Tyyppi:
Toimisto
Sopimustyyppi:
Vuokrataan
Osoite:
Pohjoisesplanadi 37, 00100 Helsinki
Kaupunginosa:
Kluuvi
Tilan koko
Kokonaispinta-ala:
388 m²
Tilan jakautuminen tilatyyppien mukaan
| Tilatyypit | Min m² | Max m² | €/m²/kk |
|---|---|---|---|
| Toimisto | 165 | 388 |
Rakennustiedot
Energialuokka:
Ei lain edellyttämää energiatodistusta
Lisätiedot
Kerros:
4
Kartta
Ota yhteyttä
JK
Joakim Kukkonen
Osakas, Toimitilavälittäjä
Näytä puhelinnumero
SP
Seppo Pakarinen
Osakas, Kiinteistönvälittäjä. LKV, YKV, AKA
Näytä puhelinnumero
Tietoa ilmoittajasta
Arvo Premises Oy
Näytä kaikki saman ilmoittajan kohteetItälahdenkatu 2 a 20
00210
Helsinki














