Uudet käyttö- ja sopimusehdot
Päivitämme käyttö- ja sopimusehtojamme. Uudet ehdot ovat voimassa 1.5.2025 alkaen. Tutustu ehtoihin
Käsityökatu 41 Kuopio
70100Tyyppi
Toimisto
Koko
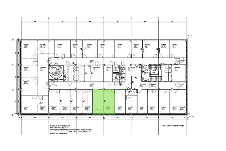
45 m²
Kerros
2 / 3
Vuokra
Kysy hintaa!
Vuokrataan pientoimistotilaa huippusijainnilla ja kattavilla palveluilla Kuopion ydinkeskustasta. Saat käyttöösi myös yhteiskäytössä olevat kokoustilat sekä Konttorit-konseptin palvelut helpottamaan yrityksesi arkea.
Käsityökatu 41 sijaitsee aivan rautatieaseman kupeessa, Kuopion ihmisvirran ytimessä.
Rakennuksen tilat soveltuvat hyvin erilaisille yrityksille ja yhteisöille. Oman toimistotilan lisäksi saat käyttöösi yhteiskäytössä olevan keittiön ja tarpeen mukaan varattavissa olevat neuvotteluhuoneet, mitkä tarjoavat joustavuutta asiakas- tai tiimipalaverien pitämiseen.
Kiinteistön 1. ja 2. kerroksessa on vapaana pientoimistoja, jotka sopivat moneen käyttöön yhden hengen työtilasta tiimin jaetuksi tilaksi.
Rakennus on valmistunut vuonna 1974 toimistotiloiksi, joita on remontoitu ja modernisoitu vuosien varrella. Viimeisimmät muutokset on toteutettu vuonna 2015, joten tilat palvelevat erinomaisesti tämän päivän yritysten tarpeita.
Lue lisää Käsityökadun Konttorista: https://konttorit.fi/sijainnit/kuopion-kasityokatu/
Nykyisellään kiinteistössä toimii monia eri käyttäjiä mm. Terapiatalo Noste Oy, Kalla Kommunikaatio Oy, Kuopion Kuurojenyhdistys ry sekä Kuopion kaupunki.
Perustiedot
Tyyppi:
Toimisto
Sopimustyyppi:
Vuokrataan
Osoite:
Käsityökatu 41, 70100 Kuopio
Tilan koko
Kokonaispinta-ala:
45 m²
Rakennustiedot
Rakennusvuosi:
1974
Lisätiedot
Kerros:
2 / 3
Ympäristö
Pysäköinti:
Kohteessa on 22 pysäköintipaikkaa yritysten henkilöstön käyttöön ja lähellä on useita parkkihalleja.
Lähipalvelut:
Kuopion keskustan palvelut ovat käden ulottuvilla.
Liikenneyhteydet:
Paikalle on helppo saapua niin kävellen, pyörällä kuin autolla. Linja-auto- ja juna-asema 140 m päässä.
Kartta
Tietoa ilmoittajasta
Samla Capital Oy
Näytä kaikki saman ilmoittajan kohteetKauppakatu 18 C 35
40100
Jyväskylä












