Uudet käyttö- ja sopimusehdot
Päivitämme käyttö- ja sopimusehtojamme. Uudet ehdot ovat voimassa 1.5.2025 alkaen. Tutustu ehtoihin
Seksmannintie L Rantavalli, Kokkola
67800Tyyppi
Muu
Koko
142 m²
Kerros
1 / 1
Myyntihinta
198 000 €
Saatavilla
Kohteen valmistuttua
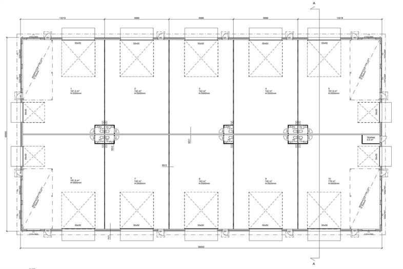
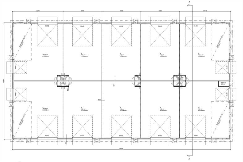
Rakennetaan uusi hallikompleksi Kokkolan Rantavalliin, Rantatien ja Seksmannintien (tuleva ohikulkutie) risteyksessä. Hanke käsittää kokonaisuudessaan noin 1600 m2 ja halli myydään 142 m2 ja 181,8 m2 osina tai kombinaationa näistä. Halliosat sopivat mainiosti sekä yritys- että yksityis- käyttöön. Halliosat myydään osakkeina perustettavassa keskinäisessä kiinteistöosakeyhtiössä. Hallikompleksi rakentaa yhteistyössä yhtiöt Kronqvist Yhtiöt Oy ja Byggstaff Ab. Rakentamisen aloittaminen suunniteltu keväälle 2025.
Hallissa on betonirunko, vesikiertoinen lattialämpö (kaukolämpö), isot nosto- ovet moottorilla (5x5 m), erillinen käyntiovi, korkea kattokorkeus (5,5 m), vesipiste, lattiakaivo, valmius vessalle, kolmivaihevirta ja hyvä LED-valaistus. Halliosat voidaan myös räätälöidä muilla varusteilla teidän tarpeiden mukaan. Hallin päätyosat ovat suunniteltu isoilla ikkunoilla ja mahdollisuus on esim. toimistoparvelle.
Räätälöidään hallirakennuksemme täysin asiakkaiden tarpeen mukaan. Ota yhteyttä niin suunnitellaan teille täydellinen ratkaisu!
/
Ett nytt hallkomplex byggs på Strandvallen i Karleby, intill Strandvägen och Seksmansvägen (blivande omfartsväg). Hallkomplexet omfattar totalt ca 1600 m2 och säljs i delar på 142 m2 och 181,8 m2 eller i kombinationer av dessa storlekar. Halldelarna lämpar sig både för företags- och privatbruk. Halldelarna säljs som aktier i ett ömsesidigt fastighetsaktiebolag. Hallen byggs i samarbete mellan Kronqvist Bolagen Ab Oy och Byggstaff Ab. Planerad byggstart våren 2025.
Hallen är utrustad med betongstomme, vattenburen golvvärme (fjärrvärme), stora lyftdörrar med motor (5x5 m), separat gångdörr, hög takhöjd (5,5 m), vattenpost, golvsil, förberedelse för wc, kraftström och bra belysning. Halldelarna kan också skräddarsys med övrig utrustning enligt behov. Gavellokalerna är planerade med fönster och möjlighet till exempelvis kontorsloft finns.
Vi skräddarsyr våra hallbyggnader helt efter kundernas behov. Hör av dig så skapar vi en lösning som passar perfekt för era behov!
Yhteydenotot:
Jörn Sundström
0400776010
jorn@asuntobjorndahl.fi
Perustiedot
Tyyppi:
Muu
Sopimustyyppi:
Myydään
Osoite:
Seksmannintie L, 67800 Kokkola
Kaupunginosa:
Rantavalli
Velaton hinta:
198 000 €
Myyntihinta:
198 000 €
Hoitovastike:
298 €
Rakennustiedot
Rakennusvuosi:
2025
Lisätiedot
Saatavilla:
Kohteen valmistuttua
Kerros:
1 / 1
Ympäristö
Liikenneyhteydet:
Sujuvat yhteydet omalla autolla


























