Uudet käyttö- ja sopimusehdot
Päivitämme käyttö- ja sopimusehtojamme. Uudet ehdot ovat voimassa 1.5.2025 alkaen. Tutustu ehtoihin
Rekipellontie 2, Mellunkylä Mellunkylä, Helsinki
00940Tyyppi
Toimisto
Koko
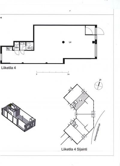
66 m²
Vuokra
Kysy hintaa!
Asuin- ja liikekiinteistön katutasossa vuokrattavana liike/toimistotila 66 m². Kiinteistön kahdeksan liiketilaa sijaitsevat rakennuksen ensimmäisessä kerroksessa. Lähimmälle metroasemalle on matkaa 600 metriä. Rekipellontien pihatontilla on kiinteistöltä vuokrattavia autopaikkoja.
Perustiedot
Tyyppi:
Toimisto, Liiketila
Sopimustyyppi:
Vuokrataan
Osoite:
Rekipellontie 2, Mellunkylä, 00940 Helsinki
Kaupunginosa:
Mellunkylä
Tilan koko
Kokonaispinta-ala:
66 m²
Tilan jakautuminen tilatyyppien mukaan
| Tilatyypit | Min m² | Max m² | €/m²/kk |
|---|---|---|---|
| Toimisto | 66 | ||
| Liiketila | 66 |
Rakennustiedot
Energialuokka:
F
Kartta
Tietoa ilmoittajasta
Comreal Oy
Näytä kaikki saman ilmoittajan kohteetLäkkisepänkuja 6
00620
Helsinki





