Uudet käyttö- ja sopimusehdot
Päivitämme käyttö- ja sopimusehtojamme. Uudet ehdot ovat voimassa 1.5.2025 alkaen. Tutustu ehtoihin
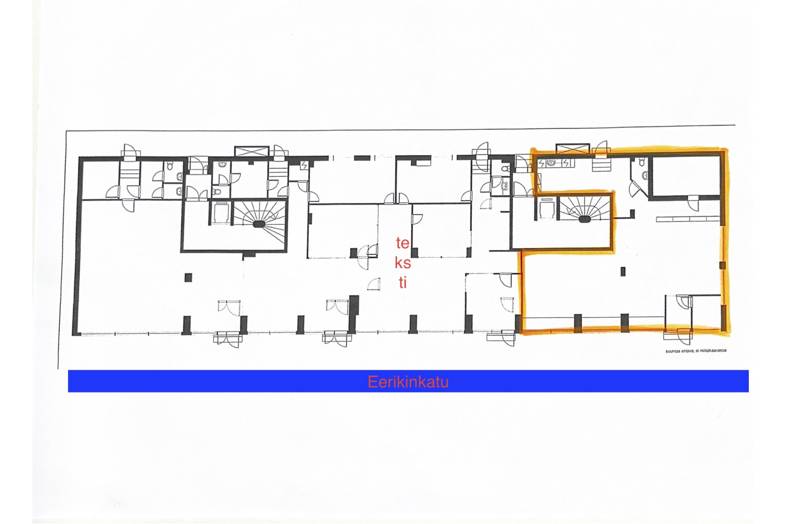
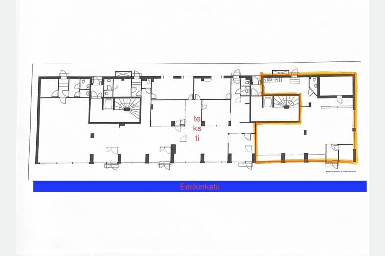
Vuokrattavana katutason n. 143m2 liikehuoneisto näkyvällä paikalla Eerikinkadun ja Käsityöläiskadun kulmassa, osoitteessa Eerikinkatu 27, Turku
Isot näyteikkunat Eerikinkadulle päin.
Tilassa toimii tällä hetkellä Outlet-ish niminen vaateliike.
Vuokrapyyntö 2 100 euroa/kk + alv. Sähkö ja vesi kulutuksen mukaan.
Vapautuu sopimuksen mukaan nopeasti.
Autopaikkoja vuokrattavissa taloyhtiön sisäpihalta.
Lisää toimitiloja www.rhg.fi
Kohteella ei lain edellyttämää energiatodistusta tai energialuokka ei tiedossa.
Perustiedot
Tyyppi:
Liiketila
Sopimustyyppi:
Vuokrataan
Osoite:
Eerikinkatu 27, 20100 Turku
Vuokra:
14,69 €/m²/kk
Linkit
Kartta
Tietoa ilmoittajasta
Toimitilavälitys RHG Oy
Näytä kaikki saman ilmoittajan kohteetHämeenkatu 2 B20
20500
Turku




































