Uudet käyttö- ja sopimusehdot
Päivitämme käyttö- ja sopimusehtojamme. Uudet ehdot ovat voimassa 1.5.2025 alkaen. Tutustu ehtoihin
Pohjoisesplanadi 37 Kluuvi, Helsinki
00100Tyyppi
Toimisto
Koko
220 m²
Vuokra
Kysy hintaa!
Tämä täysin remontoitu toimistotila sijaitsee sisäpihan puolella uuden kahvila- ja ravintolakeskittymän yläpuolella. Kiineistössä on kehityshanke meneillään jossa sisäpiha katetaan kauniilla verkkomaisella katteella ja siitä tulee lämmintä sisätilaa, jossa nautittavissa omassa korttelissa maukasta ruokaa ja juomaa.
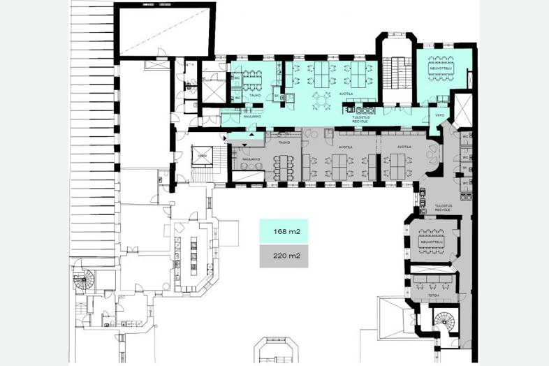
Toimistokokonaisuus kattaa kaksi huoneistoa 168 m2 ja 220 m2 jotka on mahdollista vuokrata erikseen tai yhdessä jolloin koko toimistopinta-ala on 338 m2.
Toimisto 220 m2
- 3 kpl sisäänkäyntejä
- 1 kpl toimistohuone
- 1kpl neuvotteluhuone
- avotoimistotilaa
- keittiö ja taukotila
- 2 kpl wc
Katso tilan tarkempi pohjakuva kohde-esitteen valokuvista. Tilaa on myös mahdollista muokata vuokralaisen toiveiden mukaan.
Korkea huonekorkeus!
Perustiedot
Tyyppi:
Toimisto
Sopimustyyppi:
Vuokrataan
Osoite:
Pohjoisesplanadi 37, 00100 Helsinki
Kaupunginosa:
Kluuvi
Tilan koko
Kokonaispinta-ala:
220 m²
Rakennustiedot
Energialuokka:
Ei lain edellyttämää energiatodistusta
Lisätiedot
Muita tietoja:
Talo on saneerattu nykyaikaisen talotekniikan vaatimustason täyttäväksi.
Ympäristö
Pysäköinti:
Lähin autoilijoita palveleva pysäköintihalli sijaitsee Kluuvissa, sisäänajo Kaisaniemestä tai Fabianinkadulta.
Lähipalvelut:
Katutason liiketiloihin tulee kehityshankkeen myötä ravintolatoimijoita ja upea katettu sisäpiha palveluineen myös keskusta-alueen monipuoliset palvelut ovat vain kiven heiton päässä kohteesta.
Liikenneyhteydet:
Julkisen liikenteen yhteydet ovat vain lyhyen kävelymatkan päässä.
Kartta
Tietoa ilmoittajasta
Comreal Oy
Näytä kaikki saman ilmoittajan kohteetLäkkisepänkuja 6
00620
Helsinki






















