Uudet käyttö- ja sopimusehdot
Päivitämme käyttö- ja sopimusehtojamme. Uudet ehdot ovat voimassa 1.5.2025 alkaen. Tutustu ehtoihin
Myydään keskinäisen yhtiön koko osakekanta, myymälä/tuotantotila Oulunlahdesta, osoitteessa Vesalantie 6, 90410 Oulu.
Rakennuksen on suunnitellut Pave Mikkonen Archeus ja kohde on valittu "Arkkitehtuuria Oulussa 2018" kirjaan.
2005 valmistunut rakennus on omalla (3741 m2) tontilla.
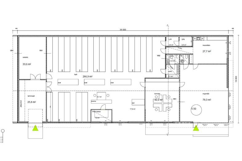
Rakennus on n. 540 kem2 joka jakautuu seuraavasti:
- Varasto 33,6 h-m2
- Terminaali/jätekatos 25,8 h-m2
- Halli/ sosiaalitilat 266,9 h-m2
- Toimisto/ myymälä/neuvottelutila/ sosiaalitila 148,2 h-m2
Piha-alue on asfaltoitu ja pistokepaikat 6:lle autolle.
Tontin rakennusoikeus kokonaisuudessaan 900 m2, rakennuksen pinta-ala 540 m2. Rakennusoikeutta on käyttämättä 360 kem2.
Tontin kaava on Liikerakennusten korttelialue.
Halliosa on puurunkoinen ja julkisivumateriaalina peltiverhous.
Rakennuksessa on varaava sähkölämmitys (lattia), viilennys ja lisälämmitys ilmalämpöpumpuilla.
Hyvä näkymä vilkkaalle Limingantielle sekä hyvät tieyhteydet Oulun Limingantulliin, Oulunsaloon, Kempeleeseen ja Pohjantielle.
Velaton myyntihinta 648.000 eur.
Pyydä tarkemmat lisätiedot tästä kohteesta!
Perustiedot
Tyyppi:
Tuotantotila
Sopimustyyppi:
Vuokrataan/Myydään
Osoite:
Vesalantie 6, 90410 Oulu
Tilan koko
Kokonaispinta-ala:
540 m²
Kartta
Tietoa ilmoittajasta

Catella Property Oy, Oulu
Näytä kaikki saman ilmoittajan kohteetKirkkokatu 6, 5. Krs
90100
OULU














































