Uudet käyttö- ja sopimusehdot
Päivitämme käyttö- ja sopimusehtojamme. Uudet ehdot ovat voimassa 1.5.2025 alkaen. Tutustu ehtoihin
Perämiehenkatu 4 Keskusta, Pietarsaari
68600Tyyppi
Toimisto
Koko
146 m²
Kerros
1 / 4
Myyntihinta
125 000 €
Saatavilla
Vapautuminen sopimuksen mukaan
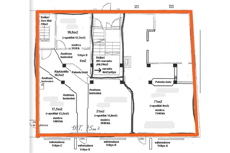
Etsitkö yrityksellesi toimistotilaa keskeiseltä paikalta Pietarsaaressa? Vai kiinnostaisiko hyvä sijoituskohde edelleen vuokraukseen? Näihin toimiviin ja helposti muunneltaviin tiloihin aivan keskustan ytimessä voisi vaikka perustaa toimistohotellin! Konttoreiden lisäksi löytyy neuvotteluhuone minikeittiöllä ja kellarista sosiaaliset tilat ja paljon varastoilaa. Tiloihin on kaksi sisäänkäyntiä kadulta ja kaksi sisäpihalta ja siksi ne soveltuvatkin vaikka useammalle yritykselle yhdessä. Ottakaa yhteyttä, niin kerron lisää ja mennään paikan päälle katsomaan! Energialuokka E2013.
/
Letar ni efter kontors- eller affärsutrymme i centrum av Jakobstad? Eller varför inte som investeringsobjekt? På Styrmansgatan finns 146 kvadratmeter som enkelt kan skräddarsys till ert företags behov; kontor, mötesrum och sociala utrymmen samt lagring i källaren. Ingångar finns flera och därför kunde utrymmet även fungera för flera verksamheter i samma lokal, exempelvis som företagshotell. Tag kontakt, så tar vi en titt!
Energiklass E2013.
Perustiedot
Tyyppi:
Toimisto
Sopimustyyppi:
Myydään
Osoite:
Perämiehenkatu 4, 68600 Pietarsaari
Kaupunginosa:
Keskusta
Velaton hinta:
125 000 €
Myyntihinta:
116 085 €
Hoitovastike:
653 €
Rahoitusvastike:
410 €
Rakennustiedot
Rakennusvuosi:
1956
Lisätiedot
Saatavilla:
Vapautuminen sopimuksen mukaan
Kerros:
1 / 4












































