Uudet käyttö- ja sopimusehdot
Päivitämme käyttö- ja sopimusehtojamme. Uudet ehdot ovat voimassa 1.5.2025 alkaen. Tutustu ehtoihin
Tekniikantie 4 b Otaniemi, keilaniemi, Espoo
02150Tyyppi
Toimisto
Koko
416 m²
Vuokra
Kysy hintaa!
Saatavilla
Heti vapaa
Rakennuksen kuvaus:
Vuonna 1990 rakennettu, neljästä rakennuksesta koostuva Aallonharja-kiinteistö on vastikään uudistettu. Tällä persoonallisella toimistokohteella on mahdollisuus huolehtia omasta viljelyalueesta, kuntoilla, huoltaa polkupyörää tai lainata kiinteistön sähköpyöriä, saunoa kelosaunassa ja nauttia kattoterassista. Peruspalvelut ovat myös tasokkaat ja kiinteistöllä on aula, ravintola, kokoustiloja ja auditorio, parkkitilaa sekä vielä pop-up-toimistoja esim. projektitöihin. Sijainti on työmatkalaiselle kätevä ja kohteelta on kävelymatka metrolle.
Tilan kuvaus:
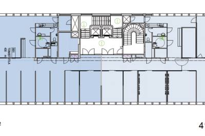
Vapaana hyvätasoista toimistotilaa Aallonharjan B-talon viidennessä kerroksessa. Vapaa tila pystytään muokkaamaan käyttäjän toiminnan vaatimusten mukaisesti avotilaksi, huoneiksi tai näiden yhdistelmäksi. Pohjakuva osoittaa koko kerroksen, josta tila on jaettuna vuokrattavaksi.
Kerros: 5
Perustiedot
Tyyppi:
Toimisto
Sopimustyyppi:
Vuokrataan
Osoite:
Tekniikantie 4 b, 02150 Espoo
Kaupunginosa:
Otaniemi, keilaniemi
Tilan koko
Kokonaispinta-ala:
416 m²
Rakennustiedot
Kiinteistön nimi:
Toimistotila
Lisätiedot
Saatavilla:
Heti vapaa
Kartta
Tietoa ilmoittajasta
JLL Jones Lang LaSalle Finland Oy
Näytä kaikki saman ilmoittajan kohteetKeskuskatu 7, 4. krs
00100
HELSINKI
























