Uudet käyttö- ja sopimusehdot
Päivitämme käyttö- ja sopimusehtojamme. Uudet ehdot ovat voimassa 1.5.2025 alkaen. Tutustu ehtoihin
Työpajankatu 10 Kalasatama, Helsinki
00580Tyyppi
Toimisto
Koko
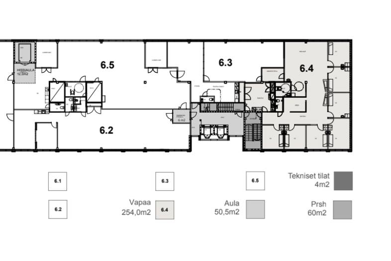
254 m²
Vuokra
Kysy hintaa!
Saatavilla
Heti vapaa
Rakennuksen kuvaus:
Vuonna 1990 rakennettu toimistokiinteistö Yrittäjätalo on huippusijainnilla kehittyvän Kalasataman ytimessä. Rakennuksessa on seitsemän kerrosta toimistotilaa sekä upea lounasravintola Kattohaikara rakennuksen kattoterassilla. Ylimmistä kerroksista avautuu kauniit merinäköalat. Sijaintia luonnehtivat erinomaiset liikenneyhteydet ja palvelut; Kalasataman metroasema ja Redi ovat noin 100 metrin päässä.
Tilan kuvaus:
Tämä tila soveltuu vastaanottotilaa sekä huoneita vaativalle yritykselle, kuten fysioterapiaan, lääkärikeskukselle tai muulle hyvinvointia tarjoavalle taholle. Huoneissa on vesipisteet. Tilaan on ovipuhelin katutasosta, mikä sopii asiakaskulkuun. Esteetön tila. Toteutetty tyylikkäästi!
Kerros: 6
Perustiedot
Tyyppi:
Toimisto
Sopimustyyppi:
Vuokrataan
Osoite:
Työpajankatu 10, 00580 Helsinki
Kaupunginosa:
Kalasatama
Tilan koko
Kokonaispinta-ala:
254 m²
Rakennustiedot
Kiinteistön nimi:
Toimistotila
Lisätiedot
Saatavilla:
Heti vapaa
Kartta
Tietoa ilmoittajasta
JLL Jones Lang LaSalle Finland Oy
Näytä kaikki saman ilmoittajan kohteetKeskuskatu 7, 4. krs
00100
HELSINKI








