Uudet käyttö- ja sopimusehdot
Päivitämme käyttö- ja sopimusehtojamme. Uudet ehdot ovat voimassa 1.5.2025 alkaen. Tutustu ehtoihin
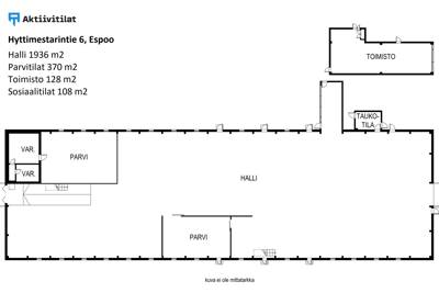
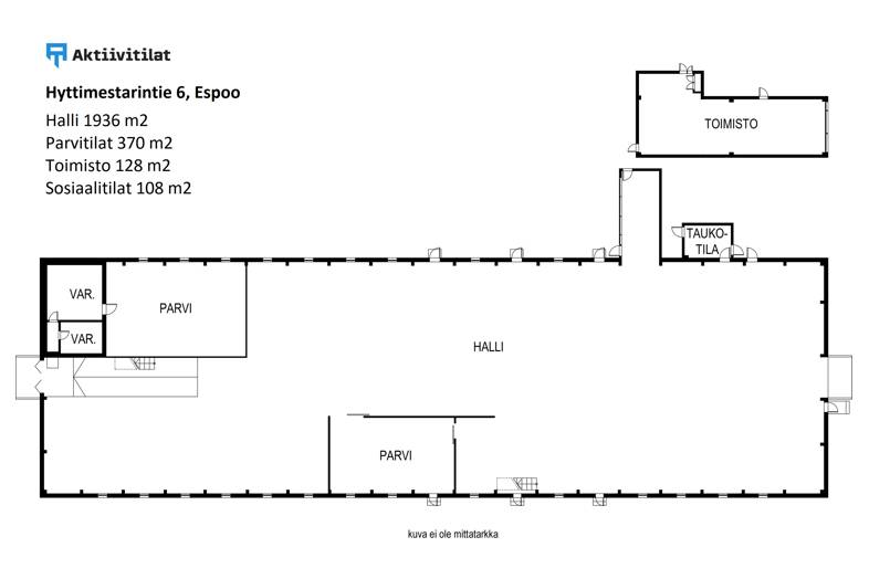
Hyttimestarintie 6 Vanttila, Espoo
02780Tyyppi
Varastotila
Koko
2 160 m²
Vuokra
Kysy hintaa!
Pilariton läpivirtaava halli sekä oheistilat.
Toimiva hallitila Kauklahden teollisuusalueella vain noin kilometrin päässä Kaukhahden juna-asemalta. Suorakulmion muotoisessa hallissa on isot ovet päädyissä (toinen lastaustaskulla, toinen sisäänajettava) ja mikä parasta: ei yhtään pilaria. Hallissa on nyt kaksi parvitilaa, jotka mahdollista purkaa, mikäli haluatte mahdollisimman yhtenäisen avoimen tilan.
Varaston yhteydessä isot sosiaali- ja pukutilat sekä n. 130 m² toimistoa, yhteensä 277 m2.
Varasto 1883 m2, 1. krs. Kokonainen hallivarastotila, jossa yksi lastaustasku ja maantason nosto-ovi toisessa päädyssä. Remontoitavissa uuden käyttäjän tarpeisiin. Sisältää sosiaalitiloja ja toimistohuoneita
Hyvät pihatilat ja reilusti autopaikkoja.
Hallissa 5000 kg siltanosturi, joka ei ole ollut hetkeen käytössä, mutta oletettavasti otettavissa huollolla käyttöön.
+ Hyvä sijainti Kauklahden teollisuusalueella lähellä juna-asemaa + Selkeä pohjaratkaisu, pilariton hallitila! + Lastaustasku & sisäänajomahdollisuus + Hyvä valaistus + Hallissa 6 m vapaakorkeus + Hyvät pihatilat.
Perustiedot
Tyyppi:
Varastotila
Sopimustyyppi:
Vuokrataan
Osoite:
Hyttimestarintie 6, 02780 Espoo
Kaupunginosa:
Vanttila
Tilan koko
Kokonaispinta-ala:
2160 m²
Kartta
Tietoa ilmoittajasta
ML Real Estate Oy
Näytä kaikki saman ilmoittajan kohteetMannerheimintie 12 B, 5.krs
00100
Helsinki
















