Uudet käyttö- ja sopimusehdot
Päivitämme käyttö- ja sopimusehtojamme. Uudet ehdot ovat voimassa 1.5.2025 alkaen. Tutustu ehtoihin
Valokaari 10 Suutarila, Helsinki
00750Tyyppi
Tuotantotila
Koko
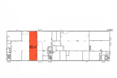
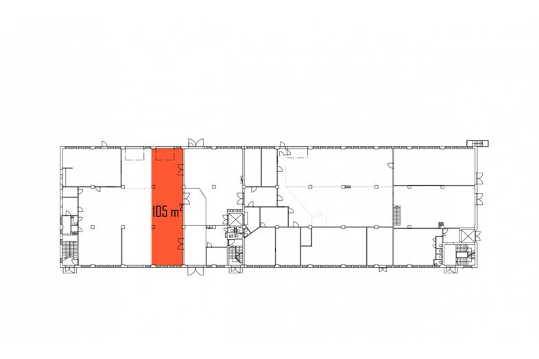
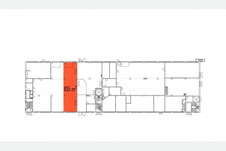
105 m²
Vuokra
Kysy hintaa!
Vuokrataan perinteikkäästä teollisuusmiljööstä katutason tuotanto- tai varastotila 105 m². Tilan korkeus on noin 3 m ja sinne johtaa oma nosto-ovi (leveys 300 cm, korkeus 227 cm) suoraan pihalta. Lisäksi lastausaulan kautta on kulkumahdollisuus pariovien kautta. Tila voidaan erottaa viereisestä tilasta rakentamalla niiden väliin ylä- ja alareunoista avoin seinämä.
Sijainti on tunnettu ja hyvä. Pääkaupunkiseudun selkärangalle, Kehä 3:lle, on alle kilometri, Helsinki-Vantaan lentoasemalle alle 10 kilometriä ja Vuosaaren satamaan vain hieman reilu 10 km.
Kysy lisää, Jouko Raitanen Helsinki, puh. 0504695444.
Perustiedot
Tyyppi:
Tuotantotila
Sopimustyyppi:
Vuokrataan
Osoite:
Valokaari 10, 00750 Helsinki
Kaupunginosa:
Suutarila
Linkit
Kartta
Tietoa ilmoittajasta
Toimitilavälitys RHG Oy
Näytä kaikki saman ilmoittajan kohteetHämeenkatu 2 B20
20500
Turku








