Uudet käyttö- ja sopimusehdot
Päivitämme käyttö- ja sopimusehtojamme. Uudet ehdot ovat voimassa 1.5.2025 alkaen. Tutustu ehtoihin
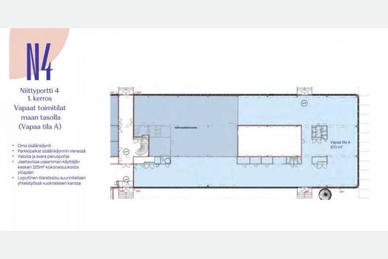
Niittyportti 4 Niittykumpu, Espoo
02200Tyyppi
Toimisto
Koko
269 - 3 600 m²
Vuokra
Kysy hintaa!
Niittyportti 4 tarjoaa viihtyisiä toimi- ja toimistotiloja esimerkiksi hyvinvointipalveluille tai muiden alojen yrityksille.
Rakennuksen perusosassa toimii Niittykummun perhekeskus, joka tarjoaa lapsille, nuorille ja perheille suunnattuja neuvola-, hyvinvointi-, terveys-, tuki- ja kuntoutuspalveluja.
Rakennuksen torniosassa taas on tarjolla tilaa muille toimijoille.
Rakennus peruskorjattiin syksyllä 2023 ympäristöarvot ja energiatehokkuus huomioiden. Perusparannustöiden kohteena olivat pääsisäänkaynti, julkisivu, piha, talotekniikka sekä sisätilat. Valoisat, avarat ja rauhalliset tilat on suunniteltu työntekijöiden tarpeet huomioiden. Kohde täyttää kansainvälisen LEED-ympäristösertifikaatin GOLD-tason.
Perustiedot
Tyyppi:
Toimisto
Sopimustyyppi:
Vuokrataan
Osoite:
Niittyportti 4, 02200 Espoo
Kaupunginosa:
Niittykumpu
Tilan koko
Kokonaispinta-ala:
3600 m²
Tilan jakautuminen tilatyyppien mukaan
| Tilatyypit | Min m² | Max m² | €/m²/kk |
|---|---|---|---|
| Toimisto | 269 | 3 600 |
Rakennustiedot
Energialuokka:
Ei lain edellyttämää energiatodistusta
Kartta
Ota yhteyttä
JK
Joakim Kukkonen
Osakas, Toimitilavälittäjä
Näytä puhelinnumero
SP
Seppo Pakarinen
Osakas, Kiinteistönvälittäjä. LKV, YKV, AKA
Näytä puhelinnumero
Tietoa ilmoittajasta
Arvo Premises Oy
Näytä kaikki saman ilmoittajan kohteetItälahdenkatu 2 a 20
00210
Helsinki


























